|
Aufgabenstellung
Das nebenstehend dargestellte Gebäude wird in Holztafelbauweise
errichtet. Standort ist Flensburg.
Die Wände des Erdgeschosses (grünlich angelegter Bereich)
sollen hierzu unter Berücksichtigung der Einwirkungen Eigengewicht,
Nutzlasten, Wind und Schnee nachgewiesen werden.
|
 |
|
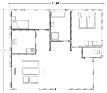
Als Grundriss liegt der nebenstehend dargestellte Architektenplan
im DXF-Format vor.
Die Außenwände sollen eine Gesamtwandstärke von 20
cm und die Innenwände von 15 cm erhalten.
Das Beispiel wurde mit leichten Abweichungen bzw.
Ergänzungen in Anlehnung an
Professor Dr.-Ing. Claus Wagner
Hochschule Rosenheim
Studiengang Holzbau und Ausbau
Arbeitsblätter: Stabilität von Gebäuden
gewählt. |
 |
|
|
|
| Einrichtung
eines DTE®-Bauteils - Programmstart |
|
 |
| Erzeugen Sie im DTE®-System
ein neues Bauteil. Klicken Sie hierzu auf das nebenstehend
dargestellte Symbol und wählen in dem nun erscheinenden
Eigenschaftsblatt in der Gruppe Flächentragwerke die Problemklasse 4H-HORA - Aussteifungen aus. Klicken Sie auf den erzeugen-Button. |
|
|
|
|
|
|
 |
Positionieren Sie das Bauteil-Icon
im aktuellen Ordner an einer freien Stelle.
Geben Sie dem Bauteil die Bezeichnung Projekt 1.
Führen Sie einen Doppelklick über dem
Icon aus. |
|
| |
| 4H-HORA wird gestartet. |
| Die nachfolgenden Eingaben erfolgen
entspr. DIN. |
|
|
|
|
| System
+ Grundeinstellungen |
|
| Es wird automatisch die erste Seite: Gebäudemodell im ersten Register System + Grundeinstellungen eingeblendet. |
|
|
|
|
 |

|
| Geben Sie hier die nebenstehend
dargestellten Werte ein, die sich direkt aus
der ersten, auf dieser Seite dargestellten
Skizze ergeben. |
|
| |
| Das Koordinatensystem wird mit
den Offset-Werten 0.0, 0.0 direkt auf der
Außenhaut platziert. |
|
| |
| Beachten Sie auch, dass der
First des Satteldachs parallel zur X-Achse
verläuft und die Dachneigung 25o beträgt! |
|
| |
| Wechseln Sie nun auf die Seite Windlasten! |
|
|
|
|
|
 |
4H-WUSL informiert darüber, dass die Stadt Flensburg im Mittel
auf einer Höhe von 12 m + NN liegt und der Windzone
3 zuzuordnen ist.
|
| Tragen Sie die entsprechenden
Werte ein. Als Bodenrauigkeitsprofil sei Binnenland gewählt. |
|
| |
| Bei dem freistehenden Gebäude
müssen alle Windrichtungen untersucht
werden. Dies ist auch die Voreinstellung des
Programms. |
|
|
Es ergibt sich ein über die gesamte Gebäudehöhe
konstanter Böengeschwindigkeitsdruck von 0.70 kN/m2.
Auf den nachfolgenden Seiten Wind von links, Wind von rechts usw. kann der Rechenweg
zur Erfassung der Gesamtlasten aus Windeinwirkungen nachvollzogen
werden. Interessant ist hier u.U. auch die Zusammenfassung. |
|
|
|
| Der Zusammenfassung kann entnommen werden, dass
infolge der von der DIN 1055-4, Absatz 9.1 (4), vorgeschriebenen
Ausmitten acht alternative Lastfälle zu untersuchen sind.
Lastordinaten und Vermaßung der Lastangriffspunkte sind
hier angegeben. |
|
|
|
 |
| |
| Da keine weiteren horizontalen Lasten auf das
Gebäude wirken, steht im ersten Register nur noch die Bearbeitung
der Seite Steifigkeiten an. |
|
| Wechseln Sie bitte auf die Seite Steifigkeiten. |
|
|
|
 |
| |
| Für die Steifigkeitskennwerte zur Aufnahme
der horizontalen Lasten werden alle Nachgiebigkeitseinflüsse
berücksichtigt (Voreinstellung). Ob die Decke als
Balkenlage oder ebenfalls in Tafelbauweise ausgeführt
wird, sei dahingestellt. In jedem Fall muss der Überbau
als relativ weich angesehen werden. Die Abschätzung
der Plattensteifigkeit erfolgt aus diesem Grunde entsprechend
vorsichtig. |
|
| Tragen Sie
bitte die hier angegebenen Werte ein. |
|
|
|
| Im Nachhinein wird sich zeigen, dass die
Werte an dieser Stelle lange nicht so maßgeblich
sind, wie sie zunächst erscheinen mögen. Da
der maximale Ausnutzungsgrad i.W. aus der Schubbeanspruchung
der Beplankung herrührt, stellen die vertikalen Lasten
insgesamt nicht das Problem des Tragfähigkeitsnachweises
dar. Dies kann auch nach Abschluss aller Eingaben durch
Variation der hier angegebenen Werte unter Beobachtung
der sich jeweils neu ergebenden Ausnutzungsgrade überprüft
werden. |
|
| Die Bearbeitung des ersten Registers ist
hiermit abgeschlossen. |
|
|
|
|
| Vorbereitende
Maßnahmen zur Eingabe der Wände |
|
| Klicken Sie bitte auf das zweite
Register mit der Bezeichnung Wandscheiben + Deckenplatte. |
|
|
|
| Es erscheint die Seite Wandscheiben in
der grafischen Bearbeitungsform. |
| |
 |
Um die DXF-Datei als Vorlage
zu laden, klicken Sie auf das nebenstehend
dargestellte DXF-Symbol.
Es erscheint das Eigenschaftsblatt DXF-Vorlagen.
Klicken Sie hierin auf den neu-Button. |
Der DXF(2D)-Importfilter von DTE® wird gestartet. Wählen Sie hier die DXF-Datei
aus und klicken Sie
auf öffnen.
Bestätigen Sie das nachfolgende Analyse-Fenster. |
|
|
|
| |
| Es erscheint der Inhalt der DXF-Datei im Fenster
des Importfilters. |
|
|
 |
| |
| Die nächste Aufgabe besteht darin,
die Zeichnung auf das Wesentliche zu reduzieren. Zu beachten
ist, dass die Endpunkte jeder im Fenster dargestellten
Linie später Fangrastereigenschaften haben werden.
Maßlinien, Möblierung, Schraffuren und ähnliche
grafische Elemente werden hierbei nur stören und
sollten deswegen erst gar nicht übernommen werden.
Hierzu bietet das Programm Filterfunktionen an. |
|
 |
der Layer-Filter ermöglicht
es, grafische Elemente, die bestimmten Layern
zugeordnet sind,
ein- bzw. auszublenden |
|
 |
| der Linientyp-Filter ermöglicht
es, Linien ein- bzw. auszublenden, die mit
unterschiedlichen Linientypen dargestellt
sind (z.B. durchgezogen, gestrichelt, strichpunktiert...) |
|
 |
| mit dem Farb-Filter können
Linien in bestimmten Farben ein- bzw. ausgeblendet
werden |
|
 |
der Blockfilter ermöglicht
das Ein- bzw. Ausblenden grafischer Elemente,
die in bestimmten Blocks
definiert sind |
|
|
|
| Im vorliegenden Fall aktivieren
Sie bitte den Farb-Filter und wählen
dort die rote und weiße Farbe ab. |
|
|
|
| Das Fenster des DXF-Importfilters enthält
nun nur noch die einzig interessierenden Wände. |
|
 |
| |
| Als Nächstes muss für eine
passgenaue Skalierung gesorgt werden. Hierzu bietet
das Programm die Möglichkeit an, zwei unterschiedliche
Skalierungspunkte und deren Koordinaten im Zielsystem
zu definieren. |
|
 |
| Zoomen Sie sich
in die linke obere Ecke der Zeichnung. |
|
|
|
|
 |
| Klicken Sie nun
auf den ersten Skalierungsbutton.
Es erscheint ein Fadenkreuz. Dieses
führen Sie mit der Maus über
den oberen linken Eckpunkt und
bestätigen die Aktion mit
der linken Maustaste. |
|
|
|
|
 |
|
| Sorgen Sie dafür,
dass der Punkt mit Hilfe des nun
erscheinenden Eigenschaftsblattes
die Koordinaten X=0.00 und Y=0.00
erhält. |
|
|
| Klicken Sie auf
den bestätigen-Button. |
|
|
|
|
Zoomen Sie sich nun wieder
aus dem Ausschnitt heraus (Button Ausschnitt
zurücksetzen)
und zoomen Sie
in die rechte obere
Ecke des Grundrisses. |
| Klicken Sie auf den Button Skalierungspunkt
2 und führen
das Fadenkreuz auf die rechte obere
Ecke der dargestellten Wand. Diesem
Punkt weisen Sie nun die Koordinaten
X=11.20 und Y= 0.00 zu. |
|
|
|
| Der DXF-Importfilter ist nun in der
Lage, die erforderliche Translationsbeziehung (i.A.
auch Rotationsbeziehung) aufzubauen und die dargestellte
Zeichnung so an das Zielsystem (hier: 4H-HORA)
zu übergeben, dass die beiden ausgezeichneten
Punkte genau ihre zugeordneten Positionen einnehmen. |
|
 |
| Klicken Sie bitte
auf den Ende-Button,
um das Importprogramm zu beenden.
Das abschließende Eigenschaftsblatt
sowie das nachfolgende Meldungsfenster
bestätigen Sie. |
|
|
|
|
 |
Wir befinden uns wieder im
Programm 4H-HORA und sehen im
Eigenschaftsblatt DXF-Vorlagen den Namen der DXF-Datei in einer Auswahlliste.
Mit dem bisher beschriebenen Prozedere können
mehrere (unterschiedliche) DXF-Inhalte mit 4H-HORA verknüpft werden.
Dies wird jedoch im Normalfall nicht erforderlich
sein.
Die Vorlage kann nun noch verschoben werden,
was jedoch Dank der Verwendung der Skalierungspunkte
nicht notwendig ist.
Sorgen Sie vor
dem Bestätigen des Eigenschaftsblatts
bitte dafür, dass sowohl
der Schalter Vorlage
einblenden als auch der Schalter Kontrollpunktanziehung aktiviert sind. |
|
|
|
|
| Nach Bestätigen des Eigenschaftsblatts
erscheint die DXF-Vorlage im Grafikfenster von 4H-HORA.
Die Ränder des Grundrisses sind identisch mit
der Begrenzung der hell hinterlegten Fläche,
die den Rand der Außenhaut nach den Angaben
im ersten Register markiert. |
|
 |
|
| Es ist immer sinnvoll, gelegentlich
den bisherigen Bearbeitungszustand zu speichern. |
|
 |
| Klicken Sie hierzu
auf den speichern-Button. |
|
|
|
|
 |
Richten wir nun unser Augenmerk
auf die Voreinstellungen für neu zu erzeugende
Wände. Die Interaktionselemente hierzu
werden im Seitenauswahlfenster angeboten.
| Wählen Sie
als Lage horizontal (Voreinstellung) und als Länge
1.00 m. Klicken sie nun auf das Schraubenschlüsselsymbol.
Wählen Sie in dem nun erscheinenden
Eigenschaftsblatt als Typ Wandscheibe und als Material Holztafel. |
|
|
|
|
 |
|
| Im Register Aufbau sind alle tragenden Elemente der Holztafel schematisch
dargestellt. Durch Bearbeitung der Eingabefelder
an den Maßlinien können die Querschnittswerte
vorgegeben werden. Die Auswahllisten bieten unterschiedliche
Materialien für die Gurte, Rippen und Beplankung
an. |
|
| Da die Holztafeln der Außenwände
laut Vorgabe eine Breite von 20 cm haben
sollen, tragen Sie bitte für die
Tiefe der Stützen (und Gurte) 16.0
cm ein. Die Beplankung bekommt eine
Stärke von 20 mm (vorne und hinten
gleich). |
|
|
| |
| Im Register Bemessung können weitere Vorgaben festgelegt werden.
Insbesondere sind hier die zur Verwendung kommenden
Verbindungsmittel zu nennen. Informationen zu weiteren,
den Nachweis steuernden Angaben finden Sie unter Nachweisoptionen
der Holztafeln. |
|
 |
| Bestätigen
Sie den Inhalt des Eigenschaftsblatts. |
|
|
|
|
|
|
|
|
| Eingabe
der Wände |
|
| Es sind nun alle vorbereitenden Maßnahmen
getroffen, um mit der Erzeugung der Wände zu beginnen.
Maximieren Sie das 4H-HORA-Fenster, falls dies
noch nicht geschehen ist. Eine möglichst große Darstellung
ist den nachfolgenden Aktionen dienlich. Falls notwendig, können
Sie sich in den Plan hineinzoomen. Nutzen Sie hierzu die Symbole |
|
 |
Ansicht vergrößern |
 |
Ansicht verkleinern |
 |
Ansicht anpassen |
|
|
 |
| Klicken Sie auf das Symbol neue
Wand erzeugen. Im Arbeitsbereich
erscheint ein Rechteck in der Größe
20/100 cm, dessen Position sich über
die Bewegung der Maus steuern lässt. |
|
|
|
|
 |
Positionieren Sie das Rechteck
so, dass die obere linke Ecke des Rechtecks
mit der oberen linken Ecke der ersten horizontalen
Wand
(oben, links) übereinstimmt. Bestätigen
Sie diese Position mit der linken Maustaste. |
|
In der Statuszeile erscheint die Meldung:

|
|
|
 |
Sollte Ihnen diese Aktion misslungen sein, so klicken
Sie einfach auf den undo-Button.
Die soeben erzeugte Wand verschwindet wieder und Sie können
es erneut probieren. |
|
|
| Die soeben erzeugte Wand hat in der oberen linken
Ecke eine Markierung, den sogenannten Festhaltepunkt.
Dieser Punkt wurde vom DXF-Kontrollpunkt gefangen. D.h., der
zur Wand gehörende Festhaltepunkt hat exakt die Koordinaten
des darunter liegenden DXF-Punktes erhalten. |
|
 |
| Führen Sie nun den Mauszeiger
über den dem Festhaltepunkt gegenüberliegenden
Eckpunkt der Wand bis eine kreisförmige
Zusatzmarkierung erscheint. Drücken Sie
nun die linke Maustaste. |
| Bewegen Sie die Maus mit gedrückt gehaltener
linker Maustaste. |
|
|
|
|
 |
| Sie beobachten: Die Wand klammert sich
am Festhaltepunkt fest. |
| Die rechte untere Ecke folgt
dem Mauszeiger. |
| Auf diese Weise kann die Wand beliebig
gedehnt und verdreht werden, solange die linke Maustaste
gedrückt bleibt. |
| Führen Sie nun den Mauszeiger
über die rechte untere Ecke der Wand
in der DXF-Vorlage und lassen Sie die linke
Maustaste los. |
|
|
|
|
 |
Das Ergebnis ist nebenstehend dargestellt.
In der Statuszeile erfolgt wieder die Meldung

und die Wand hat nun exakt die geforderte Länge.
Indem Sie den Mauscursor über die Wand fahren, können
Sie dies leicht überprüfen. |
|
|
| Verfahren Sie nun mit den restlichen
horizontalen Außenwänden gleichermaßen.
Die Aktionen können pro Scheibe beschrieben
werden durch: Erzeugen, Positionieren, auf Länge
dehnen. |
|
|
| |
| Bevor die senkrechten Außenwände erzeugt
werden, sollte im Seitenauswahlfenster im Rahmen Voreinstellung die Lage vertikal ausgewählt werden. |
|
| Wände können auch durch Duplizieren
einer bestehenden Wand erzeugt werden. Dies bietet sich insbesondere
dann an, wenn die zu erzeugende Wand die gleiche Länge
hat, wie die bestehende. Fahren Sie hierzu den Mauszeiger über
die zu duplizierende Wand und klicken auf die rechte Maustaste. Wählen Sie in dem nun erscheinenden Menü
den Punkt duplizieren (noch einfacher geht es mit Hilfe
der Tastenkombination [Strg]+[D]). |
|
| Überhaupt: Machen Sie sich mit dem kontextsensitiven
Menü fokussierter Elemente vertraut, indem Sie sie einzeln
aktivieren. Keine Angst: Mit dem undo-Button
lassen sich alle Aktionen rückgängig machen. So bietet
es sich beispielsweise an, sehr lange Wände, die aus transporttechnischen
Gründen unterteilt werden müssen, zunächst in
voller Länge zu erzeugen. Mit der Menüfunktion unterteilen kann die so erzeugte Wand leicht in einzelne gleich lange Wände
unterteilt werden. |
|
| Die Innenwände sollen laut Vorgabe eine Gesamtdicke
von 15 cm erhalten. Bevor diese konstruiert werden, sollten
die Eigenschaften in der Voreinstellung entsprechend geändert
werden. |
|
| Klicken Sie hierzu im Voreinstellungsrahmen
auf das Schraubenschlüsselsymbol.
Im Materialeigenschaftsblatt (Register Aufbau)
geben Sie für die Rippentiefe den Wert 12 cm
und für die Beplankungsstärke den Wert
15 mm ein. Nach Bestätigen wird die neue Wanddicke
im Voreinstellungsrahmen ausgewiesen. |
|
|
|
| Erzeugen Sie nun bitte die restlichen
Wände. |
|
|
|
| Erzeugen Sie auch die Wände, die aufgrund
ihrer geringen Länge für die Aufnahme horizontaler
Kräfte ungeeignet erscheinen. Sie werden für die Aufnahme
der vertikalen Kräfte benötigt. Erst wenn auch dies
nicht der Fall ist (die Elemente möglicherweise erst zu
einem späteren Zeitpunkt mit einem Abstand zur Decke eingebaut
werden), sollten diese weggelassen werden. Das Vermögen,
horizontale Kräfte aufnehmen zu können, kann bei einzelnen
Scheiben abgeschaltet werden. Fahren Sie hierzu den Mauszeiger
über die betreffende Wand und aktivieren sie die Menüfunktion Eigenschaften (rechte Maustaste). Im Register Lasten kann festgelegt werden, ob die Wandscheibe horizontale Lasten
aufnehmen kann. |
|
| Das Abschalten der Möglichkeit kurzer
Wände, horizontale Lasten aufnehmen zu können, ist
i.d.R.überflüssig. Da das Programm die Lasten entsprechend
der vorhandenen Wandsteifigkeiten verteilt, kurze Wände
aber relativ weich sind, werden kurzen Wänden vom programminternen
Algorithmus keine wesentlichen Lasten zugeordnet. |
|
| Um mehreren Wänden gleichzeitig bestimmte
Eigenschaften zuzuordnen, gehen Sie wie folgt vor: |
|
 |
| Klicken Sie auf das Symbol abwählen um sicher zu gehen, dass keine Wände
mehr ausgewählt sind. |
|
|
|
|
| Klicken Sie nun nach und nach einzelne
Wände an oder ziehen Sie mit gedrückt
gehaltener linker Maustaste ein die auszuwählenden
Elemente umgebendes Rechteck auf. Beachten Sie die
Farbgebung! Ausgewählte Objekte sind in weißer
Farbe mit roter Umrandung dargestellt. |
|
|
|
 |
Klicken Sie auf das Symbol Wände
bearbeiten. Es erscheint
das Materialeigenschaftsblatt.
In der Überschriftenzeile steht Eigenschaften
der ausgewählten Objekte. |
|
|
|
|
| Wenn Sie dieses Eigenschaftsblatt bestätigen,
werden die im Eigenschaftsblatt festgelegten Eigenschaften allen
ausgewählten Objekten zugeordnet. Dies betrifft die Inhalte
aller Register, unabhängig davon, ob sie von Ihnen bearbeitet
wurden oder nicht. |
|
Nach Fertigstellung der hier besprochenen Arbeiten
sollte der Inhalt des Arbeitsfensters der nachfolgenden
Abbildung ähnlich sein. |
|
 |
|
 |
Wenn Ihnen die Nummerierung
zu sehr durcheinander geraten erscheint, können
Sie
mit Hilfe des nebenstehenden Symbols eine
neue Durchnummerierung erzwingen. |
|
|
|
|
 |
Das Ergebnis der bisherigen
Arbeit kann auch dreidimensional betrachtet
werden.
Klicken Sie hierzu auf das nebenstehende Symbol. |
|
|
|
|
Das DTE®-eigene FotoView-Werkzeug
wird gestartet. Die Beplankung wurde bewusst weggelassen, um
einen
Blick auf die Rippen und Gurte zu bekommen. |
|
 |
|
 |
| Ein guter Zeitpunkt, um den
aktuellen Bearbeitungszustand zu sichern. |
|
|
|
|
|
|
| Beschreibung
der Deckenplatte |
|
| Klicken Sie nun im zweiten Register Wandscheiben + Deckenplatte auf
die Seite Deckenplatte. |
|
|
|
| Im Bearbeitungsfenster erscheint eine Skizze,
die anzeigt, wie sich die vertikalen Lasten auf die definierten
Wände verteilen. Jede Wand ist von einer roten Linie umrandet,
die den der Wand zugeordneten Flächenbereich markiert.
Die Wand hat folglich diesen Teil der Plattenlasten zu tragen,
wenn die Automatik des Programms zur Verteilung der vertikalen
Lasten genutzt werden soll. Und zwar zu 100%, wie auf der Seite Steifigkeiten im ersten Register festgelegt
wurde. Ein Manko des Programms in der vorliegenden Version ist
speziell für den Holzbau, dass Platten nicht bereichsweise
einseitig gespannt werden können. Trotzdem ist das hier
vorgestellte Ergebnis eine sehr gute Näherung an die tatsächlichen
Verhältnisse. |
|
| Schauen wir uns die Interaktionselemente im Seitenauswahlfenster
an: Im oberen Bereich können weitere Lastschemata eingerichtet,
vorhandene Lastschemata umbenannt oder gelöscht werden.
Ein Lastschema mit der Bezeichnung standard wurde vom
Programm bereits vorgegeben. Unter Lastschema wird ein Satz
von Randabständen, Aussparungen und den daraus resultierenden
Flächenaufteilungen verstanden. |
|
| Voreingestellt ist der Plattenrand identisch mit
der im ersten Register festgelegten Außenhaut. Im Rahmen Randabstände kann der Plattenrand verschoben werden:
positive Werte verschieben den Plattenrand nach innen, negative
Werte nach außen. Im gegebenen Fall können die Werte
entsprechend der Voreinstellung belassen werden. |
|
 |
Klicken Sie im Rahmen Aussparungen auf das Schraubenschlüssel-Symbol.
Es erscheint
ein Eigenschaftsblatt, in dem Aussparungen
(Fehlflächen) definiert werden können. |
|
|
|
|
 |
| Klicken Sie hierin auf den neu-Button,
um eine neue Fehlfläche zu erzeugen. |
|
|
|
|
 |
Als Typ wählen Sie eine
rechteckförmige Fehlfläche unten
rechts.
Bestätigen Sie diese Wahl durch Anklicken
des grünen
Hakens. |
|
|
|
|
 |
Sie haben nun eine Fehl-
fläche
erzeugt, die durch Vorgabe von
Länge und Breite dimensioniert werden muss. |
|
| |
| Geben Sie die Werte ent-sprechend
der nebenstehen-den Darstellung an. |
|
| |
| Bestätigen Sie bitte das
Eigenschaftsblatt. |
|
|
|
|
| Das Bearbeitungsfenster enthält nun folgende
Darstellung: |
|
 |
|
| Sie können sich das Ergebnis auch tabellarisch
anzeigen lassen. Aktivieren Sie hierzu die alternative Schaltfläche tabellarisch.
Weitere Informationen zum programminternen Algorithmus finden
Sie unter Ermittlung
der Einflussflächen. Beachten Sie bei alledem,
dass die Bearbeitung der Seite Deckenplatte nur dann sinnvoll (und erforderlich) ist, wenn Sie von der Automatik
zur Verteilung der vertikalen Lasten im Register Belastung Gebrauch machen wollen! |
|
|
|
| Kraftaufteilung |
|
| Wechseln Sie bitte in das Register Kraftaufteilung. |
|
|
|
| Im Register Kraftaufteilung können
keine benutzerdefinierten Vorgaben gemacht werden. Im Gegenteil:
hier präsentiert das Programm das erste Zwischenergebnis.
Da zu diesem Zeitpunkt die Wände und somit die Steifigkeiten
der unterstützenden Konstruktion programmintern bekannt
sind, kann 4H-HORA das Verhalten der als starr
gedachten Deckenplatte und die Reaktion der Wände (und
ggf. Stützen) auf Einheitslasten darstellen. |
|
| Auf der Seite allg. Informationen werden zunächst der berechnete Schwerpunkt S und der Schubmittelpunkt
M ausgewiesen. Die äußeren, Schub erzeugenden Kraftgrößen
Hx, Hy und Mz werden im Schubmittelpunkt
wirkend angenommen, Mx, My und Vz wirken im Schwerpunkt. Der nachfolgenden Tabelle können
die Verformungen der "starren" Platte infolge der globalen Einheitslasten
entnommen werden. |
|
Auf den weiteren Seiten im Register Kraftaufteilung kann die Reaktion der Wände (und Stützen) auf die
Einheitslasten studiert werden. Als Beispiel sind die Horizontalkräfte
in den Scheiben infolge Hx = 1 kN
und Hy = 1 kN nachfolgend dargestellt. |
|
 |
|
| Man beachte, dass die im Register Belastung lastfallweise zusammengestellten (automatisch ermittelten) Lasten
allein durch Superposition der im Register Kraftaufteilung ausgewiesenen Einheitslasten ermittelt werden! |
| Ausnahme hiervon
bilden die lotrechten Kräfte infolge der Einheitslast Vz:
Da im ersten Register die Plattensteifigkeit zur Aufnahme der
Vertikallasten mit 0% abgeschätzt wurde, werden die Vertikallasten
allein aus den Vorgaben im zweiten Register auf der Seite Deckenplatte generiert, wenn von der Automatik des Programms Gebrauch gemacht
wird. |
|
|
|
| Belastung |
|
| Wechseln Sie bitte in das Register Belastung. |
|
|
|
| Das Register Belastung bietet die Seiten Laststruktur und Lasten zur Bearbeitung an. |
|
| Auf der Seite Laststruktur werden zunächst
die zu untersuchenden Lastarten festgelegt. Dies geschieht in
Form von Einwirkungen und Lastfällen. Im Bearbeitungsfenster
werden die aktuell definierten Einwirkungen und Lastfälle
in einer Baumstruktur dargestellt. Jede einzelne Zeile kann
durch Anklicken aktiviert werden. Eine aktivierte Zeile weist
auf der rechten Seite die Eigenschaften des von ihr enthaltenen
Objekts aus. Die dunkelrot eingefärbten Einwirkungen und
Lastfälle werden von 4H-HORA automatisch
nach den Vorgaben im ersten Register erzeugt und verwaltet.
Sie können an dieser Stelle zwar eingesehen, jedoch nicht
gelöscht oder inhaltlich verändert werden. |
|
| Mit Hilfe der Symbole über dem Arbeitsbereich
können neue Objekte in den Baum eingefügt werden. |
|
 |
mit dem hier dargestellten Symbol wird
eine neue Einwirkung eingerichtet |
 |
dieses Symbol ordnet der aktuell ausgewählten
Einwirkung einen neuen Lastfall zu |
 |
dieses Symbol löscht die aktuell ausgewählte
Zeile im Baum |
|
|
 |
| Nutzen Sie die hier vorgestellten
Interaktionselemente, um die Einwirkungen
und Lastfälle gemäß nebenstehender
Abbildung einzurichten! |
|
| |
| Die erste Einwirkung sollte
die Bezeichnung ständige Lasten erhalten
und vom Typ ständige
Lasten sein. Die zweite
Einwirkung erhält die Bezeichnung Nutzlasten,
ist vom Typ veränderliche
Lasten in der Kategorie
A -Wohn- und Aufenthaltsräume.
Die dritte Einwirkung erhält den Namen Schneelasten, ist vom Typ veränderliche
Lasten - Schnee:
Orte bis NN + 1000 m. |
|
| |
| Die den einzelnen Einwirkungen
zugeordneten Lastfälle lauten Eigengewicht, Verkehr bzw. Schnee (voll). |
|
|
|
|
| Die einer Einwirkung zugeordneten Lastfälle
werden von der Einwirkung entweder als additiv oder als alternativ geschaltet. Additive Lastfälle sind unabhängig voneinander
und können auch gleichzeitig wirken. Alternative Lastfälle
stellen Alternativen zueinander dar. Bei der Überlagerung
wird hierbei stets nur ein Lastfall (der ungünstigste)
berücksichtigt. |
|
| Die Informationen auf der Seite Laststruktur dienen zum einen der Definition von Lastfällen, geben aber
zum anderen dem (die Bemessungslasten generierenden) Überlagerungsprozess
alle Informationen hinsichtlich der Faktorisierung der Lasten.
Dies geschieht i.W. über die Eigenschaften der Einwirkungen. |
|
| Wechseln bitte Sie auf
die Seite Lasten. |
|
|
|
Hier sind die Wandlasten lastfallweise dargestellt.
Um die Seite kennenzulernen, klicken Sie auf den Lastfall
Wind
von vorne (- Ausmitte). Die folgende Darstellung erscheint im
Bearbeitungsfenster |
|
 |
|
In der Tabelle sind die einzelnen Wandlasten
des gewählten Lastfalls dargestellt. Die Tabelle kann eingesehen,
aber nicht bearbeitet werden, da sie vom Programm automatisch
verwaltet wird. Rechts neben der Tabelle sind die resultierenden
Kräfte und Momente - berechnet aus den einzelnen Tabelleninhalten
- ausgewiesen. Sie müssen mit den äußeren Kräften
im Gleichgewicht stehen, was leicht im ersten Register auf der
Seite Wind - Zusammenfassung überprüft
werden kann. Des Weiteren wird angezeigt, dass sich die Kopfplatte
im Schubmittelpunkt um -1.212 mm
in y-Richtung verschiebt. |
|
| Klicken Sie den Lastfall 1: "Eigengewicht"
an! |
|
|
|
| Die nun erscheinende Tabelle enthält ausschließlich
den Wert 0.0, ist jedoch editierbar. Sie können hier jeder
Wandtafel Lasten aus Eigengewicht zuordnen. Da Eigengewichtslasten
keine horizontalen Lasten erzeugen, reicht es aus, die ersten
beiden Spalten zu belegen. Sie können aber auch von der
Möglichkeit der automatischen Tabellenbelegung Gebrauch
machen. |
|
 |
Aktivieren Sie hierzu den Automatik-Schalter
im Seitenauswahlfenster
und klicken danach auf das Schraubenschlüsselsymbol! |
|
|
|
|
| Es erscheint das nachfolgend dargestellte Eigenschaftsblatt
auf dem Sichtgerät, in dem die Lasten aus Eigengewicht
zusammengestellt werden können. |
|
 |
|
| In dem häufigen Fall, dass die gleichen Wände
wie im Erdgeschoss auch im Obergeschoss zum Einsatz kommen,
können sie unter der (aktivierten) Überschrift aus
Wände den automatisch-Schalter
aktivieren. Als Multiplikator ist eine
2 einzugeben, da die Wände des Erdgeschosses sich selbst
und die Wände des Obergeschosses tragen müssen. Der
Block aus Stützen kann deaktiviert werden, da keine Stützen definiert sind |
|
Unter der Überschrift aus Deckenplatten wird zunächst das anzuwendende Lastschema ausgewählt,
wie es im
zweiten Register auf der Seite Deckenplatte definiert wurde. |
| Da wir nur das vom Programm automatisch eingerichtete
Standardlastschema bearbeitet haben, hält sich die Qual
der Wahl in Grenzen. Für das Eigengewicht sei folgende
Rechnung aufstellt: Die Deckenplatte liefert 0.4 kN/m2.
Die Dachkonstruktion bringt in der vertikalen Projektion inklusive
Dacheindeckung 1.5 kN/m2. Wenn davon ausgegangen
werden kann, dass die Dachkonstruktion ihr Eigengewicht über
hinreichend viele Abstützungen in die darunter liegende
Konstruktion einleitet, kann auch diese Last über die Verteilungsfunktion
der Platte verteilt werden. |
| Es ergibt sich insgesamt ein Wert
von 1.9 kN/m2. |
|
| Tragen Sie die hier angegebenen Werte
ein und bestätigen Sie das Eigenschaftsblatt. |
|
|
|
| Die Tabelle wird nun automatisch gefüllt. |
|
| Wenn Ihnen die Verteilung der Dachlasten zu abenteuerlich
erscheint, gehen Sie wie folgt vor: |
|
 |
| ändern Sie in der Lastzusammenstellung
den Wert 1.9 kN/m2 in 0.4 kN/m2 |
|
 |
erzeugen Sie auf der Seite Laststruktur unter der Einwirkung "ständige Lasten" einen
neuen Lastfall.
Nennen Sie den Lastfall EG Dach. |
|
 |
| bearbeiten Sie nun auf der Seite Lasten die Tabelle des Lastfalls EG Dach. Geben Sie
den von den Dachlasten belasteten Wänden manuell
Lastordinaten vor. |
|
|
|
| Dadurch, dass die Einwirkung "ständige Lasten"
ihre Lastfälle additiv geschaltet hat, werden nun vom Überlagerungsprozess
beide Eigengewichtslastfälle gleichermaßen (summiert)
berücksichtigt. |
|
Klicken Sie auf der Seite Lasten den Lastfall 2: Verkehr an.
Schalten Sie auch hierfür
die Automatik an
und klicken auf das Schraubenschlüsselsymbol. |
|
|
|
| Das nachfolgend dargestellte Eigenschaftsblatt erscheint. |
|
 |
|
| Tragen Sie hier Lastordinate und Multiplikator
ein und bestätigen das Eigenschaftsblatt. |
|
|
|
| Die Tabelle der Wandlasten wird wieder automatisch
gefüllt. |
|
Klicken Sie auf der Seite Lasten den Lastfall 3: Schnee (voll) an.
Schalten Sie auch
hierfür die Automatik an
und klicken auf das Schraubenschlüsselsymbol. |
|
|
|
| Mit der gleichen Argumentation wie bei den Eigengewichtslasten
der Dachkonstruktion sollen hier die Schneelasten mit der Verteilungsfunktion
der Platte auf die Wände aufgebracht werden. Nach Befragen
von 4H-WUSL erkennen wir, dass ein mit 25o geneigtes Satteldach
in Flensburg mit 0.68 kN/m2 zu belasten ist. |
|
| Tragen Sie bitte die Lastordinate
0.68 kN/m2 und den Multiplikator 1 ein
und bestätigen das Eigenschaftsblatt. |
|
|
|
| Die Zusammenstellung der Lasten ist hiermit beendet. |
|
|
|
| Ergebnisse |
|
| Wechseln Sie in das Register Ergebnisse. |
|
|
|
| Wie im Register Kraftaufteilung, so werden
auch im Register Ergebnisse keine benutzerdefinierten
Einstellungen mehr vorgenommen. 4H-HORA präsentiert
hier die Ergebnisse des Gesamtrechenlaufs. |
|
| Auf den ersten Seiten werden die extremalen Lasten
einwirkungsweise dargestellt. Diese Informationen können
von Bedeutung sein, wenn einzelne Anteile der Bemessungslasten
kontrolliert werden sollen. Danach folgen die extremalen Nachweislasten. |
|
 |
Auf der Seite Tragfähigkeit sind die Bemessungslasten für die einzelnen Wandscheiben
(und ggf. Stützen) zusammengestellt. Hierbei werden
die maximalen und minimalen Lastordinaten inklusive ihrer
zugehörigen Werte in einer Tabelle ausgewiesen. In
den Zeilen "max V" bzw. "min V" wird zusätzlich der
Wert für (qa+qe)/2 extremal ausgewiesen, da auch
diese Kombination für den kritischen Bemessungsfall
maßgebend sein kann.
Wenn Sie wissen wollen, aus welcher Kombination sich der
Inhalt einer Zeile gebildet hat, klicken Sie auf die neben
der Zeile stehende Lupe.

Einem Info-Fähnchen können sodann die Informationen
entnommen werden. |
|
|
| In dem Info-Fähnchen sind die Lastfallnummern
in eckigen Klammern angegeben, die Teilsicherheitsbeiwerte befinden
sich in den runden Klammern und die Kombinationsbeiwerte sind
jeweils vorangestellt. |
|
| Beachten Sie, dass jede einzelne der hier dargestellten
Zeilen den Nachweisprozess durchläuft!. Alle geforderten
Einzelnachweise werden also mit jeder Zeile einzeln durchgeführt.
Der maximale Ausnutzungsgrad ergibt sich aus dem Maximum aller
Nachweise. |
|
Genau genommen verhält es sich sogar noch
komplizierter: Da die Holzbaunormen die Anwendung des kmod-Ver-
fahrens vorschreiben, existieren nicht nur eine, sondern
gleich fünf Extremalwerttabellen. Diese sind den Klassen
der Lasteinwirkungsdauer (KLED) zugeordnet, die ihrerseits die
Größenordnung des kmod-Wertes auf der
Nachweis-
seite bestimmen. Um auch die restlichen Extremalwerttabellen
einzusehen, wählen Sie die Tabelle in der KLED-Auswahlliste
aus. |
|
| Die interessantesten Informationen stehen sicherlich
unter der Überschrift Ausnutzungsgrade, erforderliche
Bewehrung auf der Seite Überblick. |
|
 |
Hierin sind die maximalen Ausnutzungsgrade
aus allen Nachweisen aller extremalen Kombinationen für
jede Wandscheibe übersichtlich in einer Tabelle ausgewiesen.
Dieser Tabelle kann folglich entnommen werden, ob die
angestrebten Nachweise erbracht werden konnten oder nicht.
Befinden sich alle Holztafeln im grünen Bereich (Ausnutzung
≤100%), kann die statische Berechnung der Wandtafeln
des betrachteten Geschosses als abgeschlossen betrachtet
werden.
Auf der Seite Holztafeln können die Teilergebnisse
der Einzelnachweise wandweise eingesehen werden. Beachten
Sie, dass diese Seite horizontal gescrollt werden kann! |
|
|
|
|
| Test |
|
| Um zu sehen, wie das Programm auf
einzelne Änderungen reagiert, wechseln Sie
in das erste Register auf die Seite Gebäudemodell.
Ändern Sie die Höhe über der Wandscheibenoberkante
von 3.86 m in 5.86 m und wechseln Sie wieder in
das Register Ergebnisse auf die Seite Überblick! |
|
|
|
 |
Was ist passiert?
Durch die größere Gebäudehöhe wird
auch die vom Wind belastete Fläche vergrößert.
Es ergeben sich höhere Windlasten, die automatisch
den Windlastfalltabellen zugeordnet werden. Die nachfolgende
Extremierung errechnet folglich höhere Wandlasten,
die der Nachweisprozess mit positivem Erfolg nachzuweisen
nicht mehr in der Lage ist. |
|
|
 |
In diesem Falle hilft ein Blick auf die
Seite Holztafeln.
Hierin wird für die Scheiben mit Ausnutzungsgrad
>100% angezeigt, dass der Nachweis der Scheibenbeanspruchung
wegen Schubversagens der Beplankung nicht erbracht werden
kann.
Wenn überhaupt etwas hilft, so muss also die Beplankung
der betroffenen Wandtafeln hinsichtlich Material und/oder
Stärke modifiziert werden.
Entsprechende Änderungen sind im zweiten Register
auf der Seite Wandtafeln vorzunehmen. |
|
|
| Machen Sie die Änderung im ersten
Register auf der Seite Gebäudemodell rückgängig! Die Höhe des Gebäudes
über der Wandscheibenoberkante erhält
wieder den Wert 3.86 m. |
|
|
|
|
|
| außergewöhnliche
Bemessungssituationen |
|
 |
Wenn Sie die Informationen zur Windzone
bzw. Schneelastzone bzgl. der Stadt Flensburg in
4H-WUSL abgefragt haben, wird Ihnen die
nebenstehende Meldung nicht entgangen sein. |
|
|
| Es ist also neben den Nachweisen in der ständigen
und vorübergehenden Bemessungssituation noch der Nachweis
zu erbringen, dass die 2.3-fachen Schneelasten im Rahmen einer
außergewöhnlichen Bemessungssituation von den Wandscheiben
aufgenommen werden können. |
|
| Erzeugen Sie bitte im Register Belastung auf der Seite Laststruktur eine weitere Einwirkung.
Geben Sie ihr die Bezeichnung "erhöhte Schneelasten".
Wählen Sie unter der Überschrift Überlagerungstechnische
Eigenschaften den Typ Sonderlast. Erzeugen
Sie (zugeordnet der soeben erzeugten Einwirkung)
einen Lastfall mit der Bezeichnung "Schnee erhöht". |
|
|
|
| Wechseln Sie auf die Seite Lasten und wählen Sie den Lastfall "Schnee erhöht"
aus. Aktivieren Sie den Automatik-Schalter und klicken
auf das Schraubenschlüsselsymbol.
Geben Sie als Lastordinate den Wert 0.68 und als
Multiplikator den Wert 2.3 ein. Bestätigen
Sie das Eigenschaftsblatt! |
|
|
|
| Wechseln Sie in das Register Ergebnisse auf der Seite Tragfähigkeit unter der
Überschrift extremale Lasten. |
|
|
|
| Sie sehen: Neben der Tabelle für eine ständige
und vorübergehende Bemessungssituation erscheint nun eine
weitere Tabelle für die außergewöhnliche Bemessungssituation.
Dies ist allein Folge der Tatsache, dass es nun eine Einwir-kung
vom Typ Sonderlast gibt. Sie sehen weiterhin, dass die in der neuen Tabelle ausgewiesenen
Werte stets kleiner sind, als die Werte in der Standardtabelle.
Die außergewöhnliche Bemessungssituation hat folglich
keine Auswirkungen in den Ausnutzungsgraden der einzelnen Holztafeln,
was leicht auf der Seite Überblick überprüft
werden kann. |
|
| Wir gestehen, dass uns bei dieser Vorgehensweise
ein kleiner Fehler unterläuft. Der Extremierungsprozess
überlagert die überhöhten Schneelasten mit den
abgeminderten restlichen Lasten der definierten "normalen" Einwirkungen.
Hierzu gehören jedoch auch die "normalen" Schneelasten,
die im Grunde genommen auszuschließen wären. Kalkulieren
wir die Größenordnung des Fehlers, so stellen wir
fest: Ergibt sich bei der Extremierung der Maximalwert unter
der Voraussetzung, dass die normale Schneelast nicht führend ist, so wird sie mit ψ2 = 0.0 abgemindert,
bleibt folglich unberücksichtigt. Ist die Schneelast führend,
so wird sie mit ψ1 = 0.2 abgemindert. In seltenen
Fällen muss also damit gerechnet werden, dass der Nachweis
nicht mit den 2.3-fachen Lasten sondern mit den 2.5-fachen Lasten
geführt wird. Der Fehler liegt folglich in seltenen Fällen
bei ca. 8.7%, - ein Wert, den wir auf der Seite "Sicherheit"
verbuchen können. |
|
|
|
|