 |
|
| Seite erweitert Sept. 2021 |
 |
Kontakt |
 |
|
 |
Programmübersicht |
 |
|
 |
Bestelltext |
 |
|
|
| Infos auf dieser Seite |
... als pdf |
 |
|
 |
|
| Die folgenden Trägeranschlüsse stellen eine Auswahl möglicher Ausführungen dar. |
| Es können hier nicht alle Variationsmöglichkeiten gelenkiger Anschlüsse gezeigt werden! |
|
Die Anschlussgeometrien werden im Planerstellungsmodul als Werkstattzeichnungen zum DXF-Export an
CAD-Systeme dargestellt. |
|
|
|
 |
|
|
|
|
 |
|
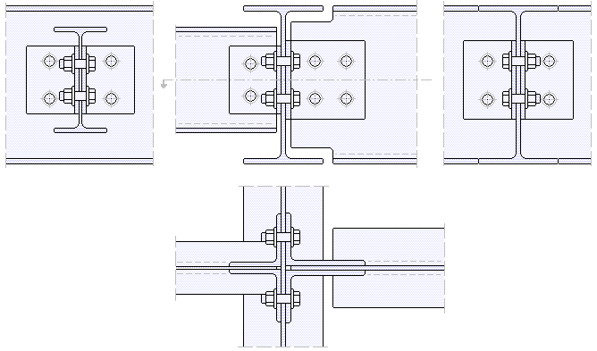
| Es können hier nicht alle Variationsmöglichkeiten gelenkiger Stirnplattenanschlüsse gezeigt werden! |
 |
|
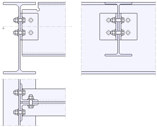
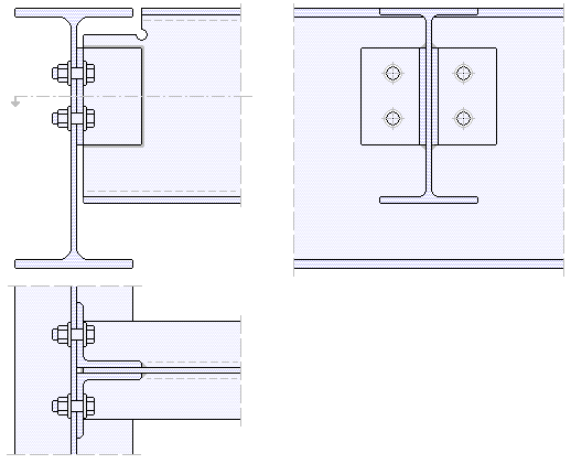
| Bsp. Hohlprofil Fahnenblechanschluss |
 |
|
|
 |
|
| Bsp. Hohlprofil Winkelanschluss |
 |
|
|
 |
|
| Es können hier nicht alle Variationsmöglichkeiten gelenkiger Stirnplattenanschlüsse gezeigt werden! |
 |
|
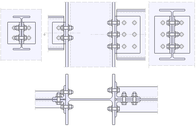
| Bsp. Stirnplatte 1 |
 |
|
|
 |
|
| Bsp. Stirnplatte 2 |
 |
|
|
 |
|
| Bsp. Stirnplatte 3 |
 |
|
|
 |
|
| Bsp. Stirnplatte 4 |
 |
|
|
 |
|
| Bsp. Stirnplatte 5 |
 |
|
|
 |
|
| Bsp. Stirnplatte 6 |
 |
|
|
 |
|
| Bsp. Stirnplatte 7 |
 |
|
|
 |
|
| Bsp. Stirnplatte 8 |
 |
|
|
 |
|
| Bsp. Stirnplatte 9 |
 |
|
|
 |
|
| Bsp. Stirnplatte 10 |
 |
|
|
 |
|
| Bsp. Stirnplatte 11 |
 |
|
|
 |
|
| Bsp. Stirnplatte 12 |
 |
|
| |
 |
|
| Es können hier nicht alle Variationsmöglichkeiten gelenkiger Fahnenblechanschlüsse gezeigt werden! |
 |
|
| Bsp. Fahnenblech 1 |
 |
|
|
 |
|
| Bsp. Fahnenblech 2 |
 |
 |
|
 |
|
| Bsp. Fahnenblech 3 |
 |
 |
|
 |
|
| Bsp. Fahnenblech 4 |
 |
|
|
 |
|
| Bsp. Fahnenblech 5 |
 |
 |
|
 |
|
| Bsp. Fahnenblech 6 |
 |
 |
|
 |
|
| Bsp. Fahnenblech 7 |
 |
|
|
 |
|
| Bsp. Fahnenblech 8 |
 |
 |
| |
 |
|
| Es können hier nicht alle Variationsmöglichkeiten gelenkiger Winkelanschlüsse gezeigt werden! |
 |
|
| Bsp. Winkelanschluss geschraubt-geschraubt 1 |
 |
|
|
 |
|
| Bsp. Winkelanschluss geschraubt-geschraubt 2 |
 |
 |
|
 |
|
| Bsp. Winkelanschluss geschraubt-geschraubt 3 |
 |
 |
|
 |
|
| Bsp. Winkelanschluss geschraubt-geschraubt 4 |
 |
 |
|
 |
|
| Bsp. Winkelanschluss geschraubt-geschraubt 5 |
 |
 |
|
 |
|
| Bsp. Winkelanschluss geschraubt-geschraubt 6 |
 |
|
|
 |
|
| Bsp. Winkelanschluss geschraubt-geschraubt 7 |
 |
 |
|
 |
|
| Bsp. Winkelanschluss geschraubt-geschraubt 8 |
 |
|
| |
 |
|
| Es können hier nicht alle Variationsmöglichkeiten gelenkiger Winkelanschlüsse gezeigt werden! |
 |
|
| Bsp. Winkelanschluss geschraubt-geschweißt 1 |
 |
|
|
 |
|
| Bsp. Winkelanschluss geschraubt-geschweißt 2 |
 |
|
|
 |
|
| Bsp. Winkelanschluss geschraubt-geschweißt 3 |
 |
 |
|
 |
|
| Bsp. Winkelanschluss geschraubt-geschweißt 4 |
 |
 |
|
 |
|
| Bsp. Winkelanschluss geschraubt-geschweißt 5 |
 |
 |
|
 |
| zur Hauptseite 4H-EC3GT, Gelenkige
Trägeranschlüsse |
 |
|
|
 |