 |
|
| Seite erweitert Januar 2026 |
 |
Kontakt |
 |
|
 |
Programmübersicht |
 |
|
 |
Bestelltext |
 |
|
|
| Infos auf dieser Seite |
... als pdf |
 |
|
 |
 |
Allgemeines zu Grundkomp. |
 |
|
 |
Trägersteg Zug ....................... |
 |
|
 |
Schraubengruppen .................. |
 |
|
 |
Stützenstegfeld Schub ............ |
 |
|
 |
Blech Zug / Druck / Schub ..... |
 |
|
 |
Stegsteifen / Rippen .............. |
 |
|
 |
Träger-/Stützensteg Querdruck |
 |
|
 |
Schrauben mit Zug ................. |
 |
|
 |
Stahlsorten ............................ |
 |
|
 |
Stützensteg Querzug .............. |
 |
|
 |
Schrauben Abscheren ............. |
 |
|
 |
Ausdrucksteuerung ................. |
 |
|
 |
Stützenflansch Biegung .......... |
 |
|
 |
Schrauben Lochleibung ......... |
 |
|
 |
nationale Anhänge .................. |
 |
|
 |
Stirnblech Biegung ................. |
 |
|
 |
Stirnblech mit Trennschicht .... |
 |
|
 |
Schraubenverbindungen .......... |
 |
|
 |
Flanschwinkel Biegung ........... |
 |
|
 |
Schweißnähte ........................ |
 |
|
 |
Schweißverbindungen ............ |
 |
|
 |
Trägerflansch / -steg Druck |
 |
|
 |
Vouten ................................... |
 |
|
 |
T-Stummel mit Zug ................ |
 |
|
| |
|
 |
T-Stummel vier Schrauben ...... |
 |
|
|
|
|
 |
|
 |
EC 3-1-8, Tab. 8.1 |
|
|
| In diesem Programm werden folgende Vorschriften eingehalten
(s. Literatur) |
 |
EC 0 - Grundlagen der Tragwerksplanung |
 |
EC 3-1-1 - Bemessung und Konstruktion von Stahlbauten |
 |
EC 3-1-8 - Bemessung von Anschlüssen |
|
|
Es sind die Vorschriften des EC 3 der ersten Generation
(Ausg. 2010) sowie deren
aktualisierte Fassungen (Ausg. 2025) hinterlegt. |
| Die Normenbezüge dieses Dokuments sind auf die
aktuellen Vorschriften aus dem Jahr 2025 ausgelegt. |
| Unterschiede gegenüber den Vorgängerversionen
sind gekennzeichnet. |
|
|
| Grundidee |
 |
|
| Mit Einführung des Eurocode 3-1-8 wurde die Komponentenmethode
zur Bemessung von Stahlbauanschlüssen vorgestellt. Der Kräfteverlauf
innerhalb eines Anschlusses wird in seine grundlegenden Komponenten
zerlegt, die unabhängig voneinander einzeln nachgewiesen werden können. |
Das Programm 4H-EC3GK beinhaltet
15 Grundkomponenten, um auch allgemeine Anschlussgeometrien abbilden
zu können. |
|
|
|
|
| Anschlusskonfiguration |
 |
|
| Ein Anschluss mit H- oder I-Profilen wird als eine Zusammenstellung
von Grundkomponenten betrachtet. |
Die Berechnungsverfahren zur Bestimmung der Momententragfähigkeit
beruhen auf einer Verteilung der inneren
Kräfte und Momente,
die zu folgenden Anschlusskonfigurationen gehört |
|
| 1 |
einseitiger Träger-Stützenanschluss |
| 2 |
zweiseitiger Träger-Stützenanschluss |
| 3 |
Trägerstoß |
| 4 |
Stützenstoß |
| 5 |
Fußplatte |
|
 |
|
|
| Anschlusskonfigurationen
um die schwache Achse gelten nur für ausgeglichene Momente Mb1,Ed ≈ Mb2,Ed. |
|
|
|
|
| statisches Modell für Träger-Stützenanschlüsse |
 |
|
| Die Anschlüsse sind für die durch die angeschlossenen
Bauteile eingetragenen Schnittgrößen zu bemessen. |
| Die angegebenen Berechnungsverfahren sind allgemein
gültig und können auf ähnliche Komponenten in anderen
Anschlusskonfigurationen mit vergleichbarer Verteilung der inneren
Kräfte und Momente übertragen werden. |
|
 |
|
|
|
|
| Klassifizierung von Querschnitten |
 |
|
| Mit der Klassifizierung von Querschnitten soll die
Begrenzung der Beanspruchbarkeit und Rotationskapazität durch
lokales Beulen von Querschnittsteilen festgelegt werden (EC 3-1-1, 7.5). |
|
 |
|
| Querschnitte können die plastische
Momententragfähigkeit und ausreichend Rotationskapazität
für die plastische Berechnung entwickeln |
|
|
 |
|
| Querschnitte können die plastische
Momententragfähigkeit entwickeln, haben aber
nur eine begrenzte Rotationskapazität |
|
|
 |
|
| Querschnitte können keine plastische
Momententragfähigkeit entwickeln, erreichen
aber die Streckgrenze in der ungünstigsten
Querschnittsfaser |
|
|
 |
|
| Querschnitte, bei denen örtliches
Beulen vor Erreichen der Streckgrenze auftritt |
|
|
|
|
| Die Klassifizierung ist vom c/t-Verhältnis abhängig
(s. EC 3-1-1, Tab. 7.3) und steuert die Berechnung der Tragfähigkeit
druckbeanspruchter Bauteile. |
|
|
|
|
| Teilsicherheitsbeiwerte für Anschlüsse |
 |
|
Für die Berechnung der Tragfähigkeiten der
Grundkomponenten werden folgende Materialsicherheitsbeiwerte
verwendet. Beanspruchbarkeit von |
 |
... Querschnitten γM0 (EC 3-1-1,
8.1) |
 |
... Bauteilen bei Stabilitätsversagen γM1 (EC 3-1-1, 8.1) |
 |
... Querschnitten bei Bruchversagen infolge Zugbeanspruchung
γM2 (EC 3-1-1, 8.1) bzw. |
 |
... Anschlüssen γM2 (EC 3-1-8, Tab.
4.1) |
|
|
|
|
Die Zahlenwerte der Teilsicherheitsbeiwerte können
im nationalen Anhang zum Eurocode 3 eingesehen
und ggf. geändert werden. |
|
|
|
|
| Allgemeines zur Programmeingabe |
 |
|
| Die folgenden Hinweise betreffen alle Programme der Grundkomponentenbibliothek. |
|
| In der Kopfleiste sind Aktionsbuttons zur Programmsteuerung angeordnet: |
|
 |
| zu den Eurocode-Dokumenten gehört ein
nationaler Anhang, in dem einige Parameter unabhängig
vom europäischen Hauptdokument national festgelegt
werden. |
| Die das Programm betreffenden Werte können
an dieser Stelle verändert werden. |
| Allgemeine Informationen zu dem Gebrauch
der nationalen Anhänge finden Sie hier. |
|
|
|
 |
| der Umfang des Statikdokuments kann individuell
angepasst werden. |
| Allgemeine Informationen zur Ausdrucksteuerung
finden Sie hier. |
|
|
|
 |
| die Ergebnisse können direkt am Bildschirm
eingesehen werden. |
|
|
|
|
 |
| über den Drucker-Button wird der Druckmanager
aufgerufen. |
|
|
|
|
 |
| der Hilfe-Button öffnet das Online-Hilfemenü. |
|
|
|
|
 |
| das Programm kann mit oder ohne Sicherung
der Eingabedaten verlassen werden. |
|
|
|
|
| In der Eingabeoberfläche werden die wesentlichen
Parameter zur Berechnung der Grundkomponente eingegeben. |
| Die Träger- und Stützenabmessungen können entweder direkt
als Parameter vorgegebenen oder den entsprechenden Profilbezeichnungen
(nur Doppel-T-Profile) entnommen werden. |
|
| Werden die Profile über ihre Bezeichnung ausgewählt,
können deren Kennwerte entweder über
den pcae-eigenen Profilmanager in das Programm
importiert oder als parametrisiertes Stahlprofil eingegeben werden. |
|
Um ein Profil aus dem Angebot des Profilmanagers zu
wählen,
ist der grün unterlegte Pfeil zu anzuklicken. |
|
Das externe pcae-Programm
wird aufgerufen, und ein Profil kann
aktiviert werden. Bei Verlassen des Profilmanagers werden die
benötigten Daten übernommen und der Profilname protokolliert. |
|
 |
|
|
Zur Definition eines parametrisierten
Profils sind
neben der Profilklasse die Profilhöhe, Stegdicke, Flanschbreite
und -dicke festzulegen. |
|
Bei gewalzten Profilen wird der Ausrundungsradius
r zwischen Flansch und Steg bzw. r2 an den äußeren
Flanschrändern geometrisch berücksichtigt,
während geschweißte Blechprofile
mit Schweißnähten der Dicke a zusammengefügt
sind. |
| Diese Schweißnähte werden nicht nachgewiesen. |
|
 |
|
|
| Bei direkter Parametereingabe werden je Grundkomponente nur die Werte angefordert,
die für die Durchführung des Nachweises erforderlich sind. |
|
| Es besteht die Möglichkeit, entweder nur die Tragfähigkeiten
zu berechnen oder den entsprechenden Nachweis zu führen und die
Ausnutzung zu ermitteln. |
|
| Wenn ein Nachweis geführt werden soll, sind entsprechende
Bemessungslasten vorzugeben. |
| Es können maximal 99 Schnittgrößen eingegeben
werden, denen jeder eine Beschreibung zugeordnet werden kann. |
|
| I.A. muss in den Grundkomponenten mindestens eine Stahlgüte
vorgegeben werden. |
| Da die Beschreibung der Stahlparameter für Verbindungen
nach EC 3 programmübergreifend identisch ist, wird auf die allgemeine
Beschreibung der Stahlsorten verwiesen. |
|
| Ebenso werden für die Berechnung einiger Grundkomponenten
Schraubenparameter verlangt. |
Da die Beschreibung der Schraubenparameter für
Verbindungen nach EC3 programmübergreifend identisch ist,
wird auf die allgemeine Beschreibung der Schrauben verwiesen. |
|
| Bei einigen Grundkomponenten
kann die Tragfähigkeit der Schweißnähte berücksichtigt werden. |
| Dabei handelt es sich i.A. um Kehlnähte, deren
Tragfähigkeit mit dem vereinfachten Verfahren ermittelt wird. |
Da die Beschreibung der Schweißnähte für
Verbindungen nach EC3 programmübergreifend identisch ist,
wird auf die allgemeine Beschreibung der Schweißnähte verwiesen. |
|
| In der Eingabeoberfläche wird die Grundkomponente
maßstäblich als Träger-Stützenverbindung dargestellt. |
| Die geometrischen Eingaben können optisch kontrolliert
werden, die Anordnung der Schnittgrößen wird verdeutlicht. |
|
| Die Eingabedaten werden programmintern auf Plausibilität
und nach Bemessungsvoraussetzungen (s. Vorschriften) überprüft.
Treten Widersprüche auf, wird die Grundkomponente in der Eingabeoberfläche
nicht dargestellt, es erfolgt eine Fehlermeldung. |
|
| Die zur Ermittlung der Tragfähigkeiten benötigten
Teilsicherheitsbeiwerte werden am Bildschirm protokolliert. |
| Deren Zahlenwerte sind der Liste von NDPs (national festgelegte Parameter)
des nationalen Anhangs entnommen. |
| Die Kapitelbezeichnungen hier beziehen sich auf die
erste Fassung des EC aus dem Jahre 2010. |
|
|
|
|
|
| Statikdokument |
 |
|
| In Abhängigkeit der gewählten Ausgabeoptionen wird das Statikdokument zusammengestellt. |
|
| Bei Bedarf können Vorbemerkungen in
das Druckdokument eingefügt werden. |
| Nachfolgend wird die Grundkomponente in einer Grafik maßstäblich dargestellt. |
| Anschließend erfolgt das Protokoll der Eingabeparameter.
Die Rechenparameter von Stahlgüte und Schraubentyp können
zusätzlich (zusätzlich den Info-Button
aktivieren) ausgegeben werden. Die verwendeten Teilsicherheitsbeiwerte
aus der Eurocode-Liste sind angefügt. |
| Sollen neben der Tragfähigkeit der Nachweis geführt
und die maximale Ausnutzung ermittelt werden, sind die Bemessungskräfte eingetragen. |
| Jetzt werden die Ergebnisse berechnet und je nach gewähltem
Ausgabeumfang ausführlich mit sämtlichen Zwischenergebnissen, standard oder minimal ausgegeben. |
Den Abschluss bilden die Protokolle der verwendeten Parameter des nationalen Anhangs sowie der
maßgebenden Vorschriften. |
|
| Das Statikdokument wird in strukturierter Form durchnummeriert.
Optional kann die Abschnittsnummerierung unterdrückt werden. |
|
| Der Statikausdruck ist auch in englischer Sprache verfügbar. |
|
|
|
|
| Formelzeichen |
 |
|
| hw |
Stegblechhöhe (lichte Höhe zwischen den Flanschen) |
| dw |
Höhe des Stegs zwischen den Ausrundungen (Höhe des geraden Stegteils) |
| tw |
Blechdicke des Stegs |
| r |
Ausrundungsradius (gewalzte Profile) |
| g |
Spalt zwischen Trägerende und Stützenflansch bei
Verbindungen mit Flanschwinkeln |
| t |
Blechdicke |
| A |
Bruttoquerschnittsfläche |
| Av |
Schubfläche |
| As |
Spannungsfläche (Schrauben) |
| b |
Breite |
| h |
Höhe |
| dst |
Abstand der Stegsteifen |
|
| fy |
Streckgrenze |
| fu |
Zugfestigkeit |
|
| z |
Hebelarm vom Druckpunkt zur resultierenden Zugkraft |
|
|
| Indices |
|
| c |
Stütze (column), Druck (compression) |
| b |
Träger (beam), Lochleibung (bearing) |
| w |
Steg (web) |
| f |
Flansch (flange) |
| a |
Winkel (angle) |
| t |
Zug (tension) |
| p |
Platte (plate) |
| ep |
Stirnplatte (end plate) |
| st |
Stegsteifen |
| s |
Stegbleche |
| 1 |
rechter Trägeranschluss |
| 2 |
linker Trägeranschluss |
| j |
Knotenpunkt der Schwerachsen |
| Rd |
Bemessungswiderstand |
| Ed |
Bemessungslast |
|
|
|
|
|
|
 |
|
 |
EC 3-1-8, A.4, Grundkomponente
1, nur bei Träger-Stützenverbindungen |
|
|
 |
|
| Bild vergrößern |
 |
|
|
|
|
| Anwendungsvoraussetzungen |
 |
|
 |
geschweißte oder geschraubte Verbindungen
können bemessen werden |
 |
der Stützensteg kann mit Stegblechen und/oder Stegsteifen
ausgesteift sein |
 |
| die Schlankheit des Stützenstegs |
 |
(EC 3-1-1:2010, Tab. 5.2) |
| ist begrenzt auf |
 |
(EC 3-1-1, A.4.1.1(1)) |
|
 |
bei beidseitigen Träger-Stützenanschlüssen
wird angenommen, dass beide Träger ähnlich hoch sind |
|
|
|
| Tragfähigkeit |
 |
|
| Die plastische Schubtragfähigkeit eines nicht ausgesteiften
Stützenstegfeldes ergibt sich zu |
|
|
|
| wirksame Schub-/Stegfläche |
|
| EC 3-1-8, A.4.1.2(1) |
|
 |
| warmgewalzte Profile Awp = hc · twc |
|
|
 |
| zusammengesetzte H- oder I-Profile Awp = hwc · twc |
|
|
|
| Bei zusätzlicher Anordnung von Stegblechen wird die wirksame
Schubfläche vergrößert |
|
 |
| Stegbleche in Kontakt mit dem Stützensteg (bs = dc): ΔAwp = bs · twc, max. ein Stegblech mit ts ≥ twc |
|
|
 |
| Stegbleche im Abstand vom Stützensteg (bs = hwc): ΔAwp = bs · Σ ts, zwei Stegbleche mit ts ≥ hwc/(40 · ε) |
|
|
|
| EC 3-1-1:2010, 6.2.6(3), Awp = Av |
|
 |
| gewalzte Profile mit I- und H-Querschnitt, Lastrichtung
parallel zum Steg |
|
 |
|
|
|
 |
| geschweißte Profile mit I- und H-Querschnitt, Lastrichtung
parallel zum Steg |
 |
|
|
|
| Bei zusätzlicher Anordnung von Stegblechen wird die wirksame
Schubfläche vergrößert um ΔAv = bs · twc |
|
|
| Stützenflansche (nicht EC 3-1-8:2010) |
|
| Die Stützenflansche verstärken die plastische Schubtragfähigkeit um den Anteil |
|
|
|
|
| Bei Schraubverbindungen kann vereinfachend die Zugzone aus der aktuellen Lastkombination ermittelt und hr aus der dem Druckpunkt am nächsten gelegenen Schraubenreihe ermittelt werden. |
|
|
|
|
|
| Verstärkungen des Stützenstegs |
 |
|
| Stegsteifen (nur zwischenliegende Steifen) |
|
| Werden zusätzliche Stegsteifen in der Druck- und
Zugzone der Stütze eingesetzt, wird die plastische Schubtragfähigkeit
des Stützenstegfeldes erhöht um |
|
| EC 3-1-8: 2025 |
|
| geschweißte Verbindung |
|
 |
|
| geschraubte Verbindung |
|
 |
|
|
| EC 3-1-8: 2010 |
|
|
|
| Die plastischen Biegetragfähigkeiten ergeben sich zu |
|
 |
|
|
| Bei geschweißten Anschlüssen sollten die
Stegsteifen der Stütze in den Achsen der Trägerflansche
liegen. |
|
| Stegbleche |
|
| Der Steg kann durch ein- oder beidseitig angebrachte Stegbleche verstärkt werden. |
| Sind die Bleche direkt am Steg befestigt
(Kontakt, umlaufende Schweißnaht), vergrößert sich die wirksame Schubfläche
(s. wirksame Schubfläche). Die Bleche sollten die gesamte ebene Stegfläche abdecken. |
| Bleche, die an die Flansche geschweißt sind (kein
Kontakt, nicht EC 3-1-8:2010), sollten paarweise und symmetrisch zum Stützensteg
angeordnet sein (immer zwei Stegbleche). |
| Für eine umlaufende Schweißnaht sind zusätzliche Stegsteifen erforderlich. |
Die Schweißnaht kann bei Berechnung der plastischen Schubtragfähigkeit berücksichtigt werden
(nicht EC 3-1-8:2010). |
|
| Voraussetzungen |
|
 |
Stegbleche sollten die gleiche Stahlgüte haben wie die Stütze |
 |
Abmessungen |
|
| |
 |
|
|
|
|
|
| Programmanwendung |
 |
|
|
|
Die für die Berechnung notwendigen Träger-
und Stützenabmessungen können entweder direkt
als Parameter vorgegebenen oder den entsprechenden Profilbezeichnungen
(nur Doppel-T-Profile) entnommen werden
(s. Allgemeines zur Programmeingabe). |
| Es werden die wesentlichen Parameter zur Berechnung
der Tragfähigkeit der Grundkomponente 1 angefordert. |
| Die Stahlsorte kann einer Liste der gängigen Typen
entnommen werden oder per Hand in das Eigenschaftsblatt eingeben werden
(s. Allgemeines zur Programmeingabe). |
|
| Die Tragfähigkeit des Stützenstegs kann durch
Stegbleche und/oder Stegsteifen erhöht werden. |
|
| Stegbleche |
|
| Die Abmessungen des Stegblechs (grafische Erläuterung
s.o.) werden abgefragt und vor der Ermittlung der Tragfähigkeit überprüft. |
| Stegbleche können ein- oder beidseitig angeordnet
werden. Sind die Bleche an die Flansche geschweißt (bs = hwc) müssen sie beidseitig angeordnet sein. |
| Sind die Bleche an den Steg geschweißt (bs ≤ dc), ist zur Info die Breite des geraden Teils des Stegblechs dc angegeben. Das Stegblech sollte den geraden Teil des Stützenstegblechs komplett abdecken. |
| Die umlaufende Schweißnaht zwischen Stegblech
und Profil ist für die Bemessungswerte der zu übertragenden Kräfte
zu bemessen (s. Allgemeines zur Programmeingabe). |
|
| Stegsteifen |
|
| Stegsteifen (grafische Erläuterung s.o.) sind in
der Druck- und Zugzone der Stütze einzusetzen. |
| Stegsteifen sind als zwischenliegende Steifen auszuführen, d.h. sie decken das gesamte Stegfeld ab. |
| Bei geschweißten Anschlüssen sollten sie
in den Achsen der Trägerflansche liegen, d.h. der Achsabstand
der Stegsteifen sollte der Trägerhöhe abzüglich der
halben Trägerflanschdicken (dst = hb - tfb) entsprechen. |
|
| Es ist anzugeben, ob es
sich um eine einseitige oder zweiseitige Anschlusskonfiguration handelt
(s.o. Berechnung). |
|
| Es wird zwischen einer geschraubten oder geschweißten
Verbindung unterschieden. Bei geschraubten Verbindungen ist der Abstand zwischen
dem Druckpunkt und der maßgebenden Zugschraubenreihe hr vorzugeben
(s.o. Berechnung). |
|
|
|
|
|
 |
|
 |
EC 3-1-8, A.5, Grundkomponente
2, nur bei Träger-Stützenverbindungen |
|
|
 |
|
| Bild vergrößern |
 |
|
|
|
|
| Anwendungsvoraussetzungen |
 |
|
 |
geschweißte oder geschraubte Verbindungen
(mit Stirnblech oder Flanschwinkeln) können bemessen werden |
 |
der Stützensteg kann mit Stegblechen und/oder Stegsteifen
ausgesteift sein; die maximale Tragfähigkeit entweder der
Stegbleche oder der Stegsteifen ist maßgebend |
|
|
|
| Tragfähigkeit |
 |
|
| Die Tragfähigkeit eines nicht ausgesteiften Stützenstegs
ergibt sich zu |
|
|
|
 |
| dem Abminderungsbeiwert ω (s. Tab.
A.1), um mögliche Interaktionseffekte mit der Schubbeanspruchung
im Stützenstegfeld zu erfassen. |
| Der Abminderungsbeiwert ist abhängig
vom Übertragungsparameter β (s. 7.2.3) und
der Stegfläche Awp (s. Grundkomponente
1, wirksame Schub-/Stegfläche). |
| Dabei ist β abhängig von der Ausführung
des Anschlusses (einseitig oder zweiseitig) und der Momentenbelastung. |
| Der Beiwert kann entweder näherungsweise
Tab. 7.4 entnommen oder mit den angreifenden Knotenmomenten berechnet werden zu |
|
 |
|
|
 |
| der wirksamen Breite beff,c,wc des Stützenstegs für Querdruck, die berechnet
wird |
|
 |
|
|
|
| Dabei sind |
|
 |
s der Radius der Ausrundung bzw. die Länge
des Schweißnahtschenkels am Steg |
 |
sp das Ausbreitungsmaß der Druckkraft durch
das Stirnblech (Ann.: 45° Lastausbreitung) mit tp ≤ sp ≤ 2 · tp |
|
|
 |
| Abminderungsbeiwert ρ für Plattenbeulen |
|
| EC 3-1-8:2025 |
|
 |
|
| EC 3-1-8:2010 |
|
 |
|
|
 |
| Abminderungsbeiwert kwc in Abhängigkeit
der maximalen Längsdruckspannung im Stützensteg |
|
 |
|
|
|
|
|
|
| Verstärkungen des Stützenstegs |
 |
|
| Stegbleche |
|
| Der Steg kann durch ein- oder beidseitig angebrachte
Stegbleche verstärkt werden. |
| Sind die Bleche direkt am Steg befestigt
(Kontakt, umlaufende Schweißnaht),
sollten sie die gesamte ebene Stegfläche abdecken. |
| Bleche, die an die Flansche geschweißt sind (kein
Kontakt, nicht EC 3-1-8:2010), sollten paarweise und symmetrisch
zum Stützensteg angeordnet sein (immer zwei Stegbleche). |
| Die Schweißnaht kann bei Berechnung
der Tragfähigkeit berücksichtigt werden (nicht EC 3-1-8:2010). |
|
| Voraussetzungen |
 |
Stegbleche sollten die gleiche Stahlgüte
haben wie die Stütze |
 |
Abmessungen |
|
| |
 |
|
|
| Werden die Stegbleche direkt auf den Steg geschweißt (Kontakt), vergrößert sich die wirksame Stegdicke |
|
|
|
| Die Stützenstegverstärkung wirkt sich damit
auch auf die Schubfläche der Stütze aus (s. Grundkomponente
1, wirksame Schub-/Stegfläche). |
|
| Werden Stegbleche an die Flansche geschweißt (kein Kontakt), wird die Tragfähigkeit des druckbeanspruchten Stützenstegs erhöht um den Anteil der zusätzlichen Stegbleche. |
| Das Stegblech wird als geschweißter Stützensteg
modelliert (s.o.) mit den Parametern |
|
| |
| Stegsteifen |
|
| Werden zusätzliche Stegsteifen in der Druckzone
der Stütze eingesetzt, können sie Stegbeulen verhindern. |
| Voraussetzung: Die Steifen sind nicht beulgefährdet,
d.h. dass die Querschnittsklasse der Steifen 3 oder geringer ist. |
|
 |
| zwischenliegende Stegsteifen |
|
|
|
| Die Steifen werden an den Steg und an beide Flansche
der Stütze geschweißt lst = hwc.
Sie wirken als Knickstab. |
|
| Voraussetzungen |
| - das Trägheitsmoment der Steifen einschl. Steg sollte größer sein als |
|
|
|
| - zur Vermeidung von Drillknicken muss gelten |
|
|
|
| Die Tragfähigkeit des ausgesteiften Stegs ergibt
sich als Beanspruchbarkeit bzgl. Biegeknicken |
|
|
|
|
|
| Die Steifen werden an den Steg und den Druckflansch
der Stütze geschweißt lst < hwc.
Sie können das frühzeitige Beulen des Stegs verhindern. |
| Die Länge der Steifen zur Einleitung der Schubkraft
in den Stützensteg wird kontrolliert. |
|
|
| Wenn die Stegsteifen wirksam das Stegbeulen unterdrücken,
ist die Stabilitätsbedingung (s.o.) nicht relevant. |
|
|
|
|
| Programmanwendung |
 |
|
|
Die für die Berechnung notwendigen Stützenabmessungen können
entweder direkt als Parameter vorgegebenen
oder den entsprechenden Profilbezeichnungen (nur Doppel-T-Profile) entnommen werden
(s. Allgemeines zur Programmeingabe). |
| Dabei kann die Stahlsorte einer Liste der gängigen
Typen entnommen werden oder per Hand in das Eigenschaftsblatt eingeben
werden (s. Allgemeines zur Programmeingabe). |
|
| Die Tragfähigkeit des Stützenstegs kann entweder
durch Stegbleche oder Stegsteifen erhöht werden. |
|
| Stegbleche |
|
Die Abmessungen des Stegblechs (grafische Erläuterung
s.o.) werden abgefragt und vor der Ermittlung
der Tragfähigkeit überprüft. |
| Stegbleche können ein- oder beidseitig angeordnet
werden. Sind die Bleche an die Flansche geschweißt (bs = hwc) müssen sie beidseitig angeordnet sein. |
| Sind die Bleche an den Steg geschweißt (bs ≤ dc), ist zur Info die Breite des geraden Teils des Stegblechs dc angegeben. Das Stegblech sollte den geraden Teil des Stützenstegblechs komplett abdecken. |
| Die Schweißnaht zwischen Stegblech und Profil
ist für die Bemessungswerte der zu übertragenden Kräfte
zu bemessen (s. Allgemeines zur Programmeingabe). |
|
| Stegsteifen |
|
Stegsteifen (grafische Erläuterung s.o.) sind
in der Druckzone der Stütze einzusetzen (nicht bei Wahl
des EC 3-1-8:2010). |
| Stegsteifen können als zwischenliegende oder kurze Steifen ausgeführt werden. |
| Zwischenliegende Steifen werden am Stützensteg und an den Flanschen befestigt, während kurze Steifen (lst < hwc) nur am Steg und Druckflansch angeschweißt sind. |
| Bei geschweißten Anschlüssen sollten die Steifen
in der Achse des Trägerdruckflanschs liegen, d.h. der Achsabstand
der Stegsteifen sollte der Trägerhöhe abzüglich den
halben Trägerflanschdicken (dst = hb - tfb) entsprechen. |
| Ist die Aussparung der Steifen am Steg-Flansch-Kontakt
der Stütze nicht angegeben, wird cst = 1.5 · sc gesetzt. |
| Die Stahlsorte der Stegsteifen kann unabhängig von derjenigen der Stütze festgelegt werden. |
|
| Die wirksame Breite des Stützenstegs für Querdruck
wird in Abhängigkeit der Verbindungsart berechnet. |
|
 |
|
| Berechnungsparameter |
Ist zur Berechnung der Tragfähigkeit die Kenntnis
von Lasten oder Spannungen notwendig, werden sie
speziell markiert (hier die Längsdruckspannung). |
|
|
|
| Druckspannungen in der Stütze wirken sich auf die
Tragwirkung aus, da sie den Beiwert kwc reduzieren können. |
| Daher ist die maximale Längsdruckspannung im Steg
(am Ende des Ausrundungsradius' bei einem gewalzten Profil oder am
Schweißnahtübergang bei einem geschweißten Profil)
infolge Normalkraft und Biegemoment in der Stütze am Anschnitt zum Träger anzugeben. |
| Bei Vorbemessungen gilt σcom,Ed = 0 (kwc wird vernachlässigt). |
| Der Übertragungsparameter β erfasst den Einfluss
des Stützenstegfeldes auf die Tragfähigkeit der Grundkomponente. |
| Er geht in die Berechnung des Abminderungsbeiwerts ω
ein. Bei einseitigem Anschluss gilt β = 1, bei zweiseitigem Anschluss
mit gleich hohen Trägern und gleich großen Momenten ist β = 0. |
|
|
|
|
|
 |
|
 |
EC 3-1-8, A.6, Grundkomponente
3, nur bei Träger-Stützenverbindungen |
|
|
 |
|
| Bild vergrößern |
 |
|
|
|
|
| Anwendungsvoraussetzungen |
 |
|
 |
geschweißte oder geschraubte Verbindungen
können bemessen werden |
 |
der Stützensteg kann mit Stegblechen und/oder Stegsteifen
ausgesteift sein; die maximale Tragfähigkeit entweder der
Stegbleche oder der Stegsteifen ist maßgebend |
|
|
|
| Tragfähigkeit |
 |
|
| Die Tragfähigkeit eines nicht ausgesteiften Stützenstegs ergibt sich zu |
|
|
 |
| dem Abminderungsbeiwert ω (s. Tab.A.1),
um mögliche Interaktionseffekte mit der Schubbeanspruchung
im Stützenstegfeld zu erfassen. |
Der Abminderungsbeiwert ist abhängig
vom Übertragungsparameter β (s. 7.2.3) und
der Stegfläche Awp
(s. Grundkomponente
1, wirksame
Schub-/Stegfläche). |
Dabei ist β abhängig von der Ausführung
des Anschlusses (einseitig oder zweiseitig) und
der Momentenbelastung. |
| Der Beiwert kann entweder näherungsweise
Tab. 7.4 entnommen oder mit den angreifenden Knotenmomenten berechnet werden zu |
 |
|
|
 |
| der wirksamen Breite beff,t,wc des Stützenstegs für Querzug, die berechnet
wird |
 |
 |
|
 |
für eine geschraubte Verbindung: wirksame
Länge des äquivalenten T-Stummels für den Stützenflansch
(s. Grundkomponente 4) |
|
|
|
|
|
|
|
|
| Verstärkungen des Stützenstegs |
 |
|
| Stegbleche |
|
| Der Steg kann durch ein- oder beidseitig angebrachte Stegbleche verstärkt werden. |
| Sind die Bleche direkt am Steg befestigt
(Kontakt), sollten sie die gesamte ebene Stegfläche abdecken. |
| Bleche, die an die Flansche geschweißt sind (kein
Kontakt, nicht EC 3-1-8:2010), sollten paarweise und symmetrisch
zum Stützensteg angeordnet sein (immer zwei Stegbleche). |
|
| Voraussetzungen |
 |
Stegbleche sollten die gleiche Stahlgüte haben wie die Stütze |
 |
Abmessungen |
|
 |
|
|
| Werden die Stegbleche direkt auf den Steg geschweißt
(Kontakt), sind die Stegbleche mit einer umlaufenden
Schweißnaht am Stützensteg zu befestigen. |
| Die Tragfähigkeit für Querzug
hängt von der Dicke der Längsnähte entlang der Stegbleche ab. |
| Die wirksame Stegdicke vergrößert sich bei |
|
|
|
|
|
| Die Stützenstegverstärkung wirkt sich damit
auch auf die Schubfläche der Stütze aus (s. Grundkomponente
1, wirksame Schub-/Stegfläche). |
|
| Werden Stegbleche an die Flansche geschweißt
(kein Kontakt), wird die Tragfähigkeit des zugbeanspruchten
Stützenstegs erhöht um den Anteil der zusätzlichen Stegbleche. |
| Das Stegblech wird als geschweißter Stützensteg
modelliert (s.o.) mit den Parametern |
|
|
|
| Stegsteifen |
|
| Bei geschweißten Verbindungen können alternativ
Stegsteifen in der Zugzone der Stütze eingesetzt werden. |
| Stegsteifen
können den Steg im Lasteinleitungsbereich verstärken. |
|
 |
| zwischenliegende Stegsteifen |
|
|
| Die Steifen werden an den Steg und an beide Flansche
der Stütze geschweißt lst = hwc.
Sie wirken zusammen mit dem Steg, ihre Zugtragfähigkeit
Ft,fc,Rd = Ast · fy,st / γM0 ist
maßgebend. |
| Die Tragfähigkeit der Schweißnähte
zwischen Steg und Steifen wird überprüft. |
|
|
| Die Steifen werden an den Steg und den Zugflansch
der Stütze geschweißt lst < hwc.
Über ihre Länge wird die Zugkraft in den Steg eingeleitet.
Die Länge der Steifen wird kontrolliert. |
| Die Steifen werden als zweiseitig angeschlossene Rippen nachgewiesen. |
| Ist die Tragfähigkeit der Rippen geringer als die Tragfähigkeit
des unversteiften Stegs, werden die Steifen ignoriert. |
|
|
|
|
| Programmanwendung |
 |
|
|
Die für die Berechnung notwendigen Stützenabmessungen
können entweder direkt als Parameter vorgegeben
oder den entsprechenden Profilbezeichnungen
(nur Doppel-T-Profile) entnommen werden (s. Allgemeines zur Programmeingabe). |
| Dabei kann die Stahlsorte einer Liste der gängigen
Typen entnommen werden oder per Hand in das Eigenschaftsblatt eingeben
werden (s. Allgemeines zur Programmeingabe). |
|
| Die Tragfähigkeit des Stützenstegs kann entweder
durch Stegbleche oder Stegsteifen erhöht werden. |
|
| Stegbleche |
|
| Die Abmessungen des Stegblechs (grafische Erläuterung
s.o.) werden abgefragt und vor der Ermittlung der Tragfähigkeit überprüft. |
| Stegbleche können ein- oder beidseitig angeordnet
werden. Sind die Bleche an die Flansche geschweißt (bs = hwc)
müssen sie beidseitig angeordnet sein. |
Sind sie an den Steg geschweißt (bs ≤ dc),
ist zur Info die Breite des geraden Teils des Stegblechs dc angegeben.
Das Stegblech sollte den geraden Teil des Stützenstegblechs komplett abdecken. |
| Die Schweißnaht zwischen Stegblech und Profil
kann bei der Ermittlung der Bemessungswerte der zu übertragenden
Kräfte
berücksichtigt werden (s. Allgemeines zur Programmeingabe). |
|
| Stegsteifen |
|
|
Stegsteifen (grafische Erläuterung s.o.) sind
in der Zugzone der Stütze einzusetzen (nicht bei Wahl
des EC 3-1-8:2010). |
| Stegsteifen können als zwischenliegende oder kurze Steifen
ausgeführt werden. |
| Zwischenliegende Steifen werden am Stützensteg
und an den Flanschen befestigt, während kurze Steifen (lst < hwc)
nur am Steg und Zugflansch angeschweißt sind. |
| Bei geschweißten Anschlüssen sollten die
Steifen in der Achse des Trägerdruckflanschs liegen, d.h. der
Achsabstand der Stegsteifen sollte der Trägerhöhe abzüglich
den halben Trägerflanschdicken (dst = hb - tfb) entsprechen. |
| Ist die Aussparung der Steifen am Steg-Flansch-Kontakt
der Stütze nicht angegeben, wird cst = 1.5 · sc gesetzt. |
| Die Schweißnähte ast der Steifen
werden bemessen (s. Allgemeines zur Programmeingabe). |
|
Die wirksame Breite des Stützenstegs für Querzug
wird in Abhängigkeit der Verbindungsart berechnet
oder vorgegeben. |
|
| Sie ist entweder für eine einzelne Schraubenreihe
oder eine Schraubengruppe zu ermitteln. |
|
|
| Der Übertragungsparameter β erfasst den Einfluss
des Stützenstegfeldes auf die Tragfähigkeit der Grundkomponente
und geht in die Berechnung des Abminderungsbeiwerts ω ein. |
| Bei einseitigem Anschluss gilt β = 1, bei zweiseitigem
Anschluss mit gleich hohen Trägern und gleich großen Momenten
ist β = 0. |
|
|
|
|
|
 |
|
 |
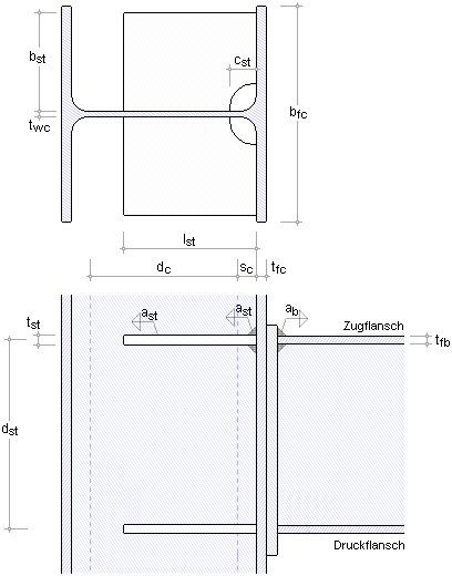
EC 3-1-8, A.7, Grundkomponente
4, nur bei Träger-Stützenverbindungen |
|
|
 |
|
| Bild vergrößern |
 |
|
|
|
|
| Anwendungsvoraussetzungen |
 |
|
 |
geschweißte oder geschraubte Verbindungen
können bemessen werden |
 |
der Stützenflansch
kann durch Quersteifen verstärkt sein |
|
|
|
| Tragfähigkeit einer geschweißten Verbindung |
 |
|
| Die Tragfähigkeit eines nicht ausgesteiften Stützenflanschs
ergibt sich zu |
|
|
|
| Voraussetzung |
|
|
|
|
|
|
| Tragfähigkeit einer geschraubten Verbindung |
 |
|
Die Tragfähigkeit eines nicht ausgesteiften oder
eines ausgesteiften Stützenflansches wird mit Hilfe des äquivalenten
T-Stummelflansches ermittelt. |
Das Modell des T-Stummelflansches ist für eine
beliebige Anzahl Schraubenreihen mit zwei Schrauben
je Reihe entwickelt worden. Daher können mit dieser Grundkomponente
nur Anschlusskonfigurationen mit zwei Schrauben je Reihe nachgewiesen werden. |
| Es kann sowohl jede einzelne Schraubenreihe als auch
jede Gruppe von Schraubenreihen für die Übertragung der
Zugkräfte maßgebend sein. |
| Eine allgemeine Beschreibung zur Berechnung des äquivalenten
T-Stummels finden Sie in der Beschreibung
der Basisverbindungen. |
|
| Um die Tragfähigkeit von Grundkomponente 4, Stützenflansch
mit Biegebeanspruchung, zu ermitteln, muss zunächst die
wirksame Länge des äquivalenten T-Stummels bestimmt werden. |
| Dazu ist die genaue Anordnung der zugbelasteten Schrauben
im Stützenflansch einzugeben. |
| Anschließend wird die Zugtragfähigkeit des
T-Stummelflansches für jede einzelne Schraubenreihe sowie für
eine Gruppe von Schraubenreihen bestimmt und die zugehörige wirksame
Länge protokolliert. |
| Die wirksame Länge aus Grundkomponente 4 kann auch
in Grundkomponente 3 eingehen. |
|
|
|
|
| Schraubengruppe |
 |
|
|
| Bei einer Stirnblechverbindung sind zusätzlich zu den einzelnen Schraubenreihen Schraubengruppen zu untersuchen, da die Rissbilder nebeneinander liegender Schraubenreihen sich gegenseitig beeinflussen. |
Eine Schraubengruppe wird gebildet aus nebeneinander liegenden Schraubenreihen, die nicht durch Quersteifen
getrennt sind. Ist also der
Stützenflansch nicht ausgesteift, werden alle zugbeanspruchten Schraubenreihen Schraubengruppen zugewiesen. |
Sind Quersteifen angeordnet, ist die Lage
der obersten Quersteife in Bezug auf die erste
Schraubenreihe entscheidend. |
|
| Da nach EC 3-1-8 ein positives Moment oben Zug erzeugt,
wird der Druckpunkt in der Mitte der unteren Quersteife angenommen.
Es werden nur Schraubenreihen berücksichtigt, die oberhalb des Druckpunkts liegen. |
Die Schraubenreihen werden beginnend mit der Reihe,
die am weitesten vom Druckpunkt entfernt liegt,
durchnummeriert. |
| Schraubenreihen, die sich oberhalb der
obersten Steife (est > 0) befinden, werden nur einzeln betrachtet. |
| Schraubenreihen, die sich unterhalb der
untersten Steife befinden, werden ignoriert. |
| Für das Beispiel (s.o.) werden also zwei Schraubengruppen gebildet, beginnend mit der ersten Schraubenreihe unterhalb der obersten Quersteife: Gruppe 1: Reihen 2,3, Gruppe 2: 2,3,4. |
|
Der Abstand der Reihen innerhalb einer Schraubengruppe
sollte gleich groß sein. Ist die Differenz zweier
Reihen größer als 1.5 · min pi, wird die Gruppe geschlossen.
Die folgende Reihe ist nun die Anfangsreihe
der nächsten Gruppe. |
|
|
|
|
| Verstärkungen des Stützenstegs |
 |
|
|
| Quer- bzw. Stegsteifen |
| Am Stützenflansch angeschweißte
Quersteifen erhöhen die Biegetragfähigkeit der Verbindung. |
| Bei geschraubten Anschlüssen dienen die Quersteifen vor allem dazu, die wirksame Breite derjenigen Schraubenreihe zu reduzieren, die neben der Steife liegt. |
| Außerdem brechen sie Schraubengruppen auf, so dass sich eine größere Tragfähigkeit ergibt (s.u.). |
| Zusätzlich zu den Steifen in Höhe der Trägerflansche kann bei geschraubter Stirnblechverbindung eine Zwischensteife eingegeben werden. |
| Die Tragfähigkeit der Quersteifen ist zu gewährleisten. |
|
| Bei geschweißten Anschlüssen
sollten die Quersteifen der Stütze in den Achsen
der Trägerflansche liegen. |
| Die Quersteifen können die Tragfähigkeit
des Stützenflanschs vergrößern. |
|
 |
| zwischenliegende Stegsteifen |
|
|
| Die Steifen werden an den Steg und an beide Flansche
der Stütze geschweißt lst = hwc.
Sie wirken zusammen mit dem Steg, ihre Zugtragfähigkeit
Ft,fc,Rd = Ast · fy,st/γM0 ist
maßgebend. |
| Die Tragfähigkeit der Schweißnähte
zwischen Flansch und Steifen wird überprüft. |
|
|
| Die Steifen werden an den Steg und den Zugflansch
der Stütze geschweißt lst < hwc.
Über ihre Länge ist die Zugkraft in den Steg einzuleiten. Die Länge der Steifen wird kontrolliert. |
| Ist die Tragfähigkeit der zweiseitig angeschlossenen
Rippen größer als die Tragfähigkeit
des unversteiften Stützenstegs, ist sie für die Grundkomponente maßgebend. |
| Rippen werden als zweiseitig angeschlossene Rippen nachgewiesen. |
| Ist die Tragfähigkeit der Rippen geringer als die Tragfähigkeit
des unversteiften Flanschs, werden die Steifen ignoriert. |
|
|
|
|
| Programmanwendung |
 |
|
|
| geschraubter Anschluss |
|
Die für die Berechnung notwendigen Stützenabmessungen
können entweder direkt als Parameter vorgegebenen
oder den entsprechenden Profilbezeichnungen
(nur Doppel-T-Profile) entnommen werden (s. Allgemeines
zur Programmeingabe). |
|
Die Stahlsorte ebenso wie die Schraubengüte und
-größe können Listen der gängigen Typen entnommen
werden oder per Hand in das Eigenschaftsblatt eingeben werden (s.
Allgemeines zur Programmeingabe). |
|
 |
|
|
| Futterbleche unter den Schraubenmuttern erhöhen
die Tragfähigkeit. |
|
 |
|
|
Die Tragfähigkeit des Stützenflanschs
kann
durch Quersteifen verstärkt werden. |
Die Abmessungen und Lage der Stegsteifen (grafische
Erläuterung s.o.) werden abgefragt und vor der Ermittlung
der Tragfähigkeit überprüft. |
| Zusätzlich kann eine Zwischensteife angeordnet werden. |
| Ist keine Dicke tst,z definiert, wird sie
gleich der Quersteifendicke gesetzt. |
|
 |
|
|
| Wird eine Zwischensteife angeordnet, vergrößert
sich die Tragfähigkeit der Komponente, da die Ausbreitung des Rissmusters begrenzt wird
(s. äquivalenter
T-Stummel). Auch kann über Steifen hinweg keine Gruppenwirkung eintreten. |
|
| In Abhängigkeit zur eingegebenen Anzahl an Schraubenreihen
insgesamt sind die Abstände der Schraubenreihen
voneinander anzugeben (d.h. Abstand zwischen den Schraubenreihen 1 und 2: p1-2 etc.). |
| Beginnend bei Schraubenreihe 1 sind nur
die Reihen, die zur Gruppenbildung herange-zogen werden, für
die Berechnung der Tragfähigkeit relevant. |
| Alle weiteren werden lediglich grafisch verarbeitet. |
|
 |
|
|
| Da die Bemessungsgrundlagen innerhalb einer Schraubengruppe
einen gleichmäßigen Abstand der Schraubenreihen erfordern,
wird der mittlere Abstand zwischen den Schraubenreihen einer Gruppe angesetzt. |
|
Ist die Anzahl an Schraubenreihen zur Gruppenbildung größer als 1 (mind.
zwei Reihen gehören einer Gruppe an), |
|
 |
|
|
| kann die Bildung der Gruppen vom Anwender vorgegeben
oder vom Programm automatisch durchgeführt werden. |
| Bei Vorgabe wird nur eine Gruppe mit der vorgegebenen Anzahl
an Mitgliedern festgelegt. |
| Bei automatischer Gruppenbildung können entweder nur die maßgebende
Gruppe oder alle Gruppen protokolliert bzw. nachgewiesen werden. |
|
| Bei einer Flanschwinkelverbindung wird nur eine Zugschraubenreihe (im oberen Winkel) berücksichtigt. Schraubengruppen werden nicht gebildet. |
|
| geschweißter Anschluss |
|
| Die Stützenabmessungen können entweder direkt
als Parameter vorgegebenen oder den entsprechenden Profilbezeichnungen
(nur Doppel-T-Profile) entnommen werden (s. Allgemeines zur Programmeingabe). |
|
Die Stahlsorte ebenso wie die Schraubengüte und
-größe können Listen der gängigen Typen entnom-
men
werden oder per Hand in das Eigenschaftsblatt eingeben werden (s.
Allgemeines zur Programmeingabe). |
|
 |
|
|
| Futterbleche unter den Schraubenmuttern erhöhen
die Tragfähigkeit. |
|
 |
|
|
| Zur Überprüfung der Schweißnaht (s.
Allgemeines zur Programmeingabe) ist
die Nahtdicke zwischen Träger- und Stützenflansch anzugeben. |
|
|
| Die Tragfähigkeit des Stützenflanschs kann
durch Quersteifen verstärkt werden. |
Die Abmessungen der Stegsteifen werden abgefragt und vor der Ermittlung
der Tragfähigkeit überprüft. |
| Es können zwischenliegende oder kurze Steifen angeordnet werden. |
|
 |
|
|
|
|
|
|
 |
|
 |
EC 3-1-8, A 8, Grundkomponente
5, bei Träger-Stützenverbindungen und Trägerstößen |
|
|
 |
|
| Bild vergrößern |
 |
|
|
|
|
| Anwendungsvoraussetzung |
 |
|
 |
geschraubte Stirnblechverbindungen können bemessen
werden |
|
|
|
| Tragfähigkeit |
 |
|
| Die Tragfähigkeit eines Stirnblechs wird mit Hilfe
des äquivalenten T-Stummelflansches ermittelt. |
Das Modell des T-Stummelflansches ist für eine
beliebige Anzahl Schraubenreihen mit zwei Schrauben
je Schraubenreihe entwickelt worden. |
| Eine Erweiterung auf vier Schrauben je Reihe
wurde von verschiedenen Autoren umgesetzt. |
| Sind nur zwei Schrauben je Reihe vorhanden, kann sowohl
jede einzelne Schraubenreihe als auch eine Gruppe von Schraubenreihen
für die Übertragung der Zugkräfte maßgebend sein. |
| Bei Verbindungen mit vier Schrauben je Reihe
werden Schraubengruppen nicht berücksichtigt. |
| Eine allgemeine Beschreibung zur Berechnung des äquivalenten
T-Stummels finden Sie in der Beschreibung
der Basisverbindungen. |
|
Um die Tragfähigkeit von Grundkomponente 5, Stirnblech
mit Biegebeanspruchung, zu ermitteln, muss zunächst
die
wirksame Länge des äquivalenten T-Stummels bestimmt werden. |
| Dazu ist die genaue Anordnung der zugbelasteten Schrauben
im Stützenflansch einzugeben. |
| Anschließend wird die Zugtragfähigkeit des
T-Stummelflansches für jede einzelne Schraubenreihe sowie für
Schraubengruppen bestimmt und die zugehörige wirksame Länge protokolliert. |
| Die wirksame Länge aus Grundkomponente 5 geht
in Grundkomponente 8 ein. |
|
|
|
|
| Schraubengruppe |
 |
|
|
| Bei einer Stirnblechverbindung sind zusätzlich zu den einzelnen Schraubenreihen Schraubengruppen zu untersuchen, da die Rissbilder nebeneinander liegender Schraubenreihen sich gegenseitig beeinflussen. |
| Eine Schraubengruppe wird gebildet aus nebeneinander liegenden Schraubenreihen, die nicht durch Quersteifen getrennt sind. Die Trägerflansche wirken wie Quersteifen der Stirnblechverbindung. |
|
| Da nach EC 3-1-8 ein positives Moment oben Zug erzeugt,
wird der Druckpunkt in der Mitte des unteren Trägerflanschs angenommen.
Es werden nur Schraubenreihen berücksichtigt, die oberhalb des Druckpunkts liegen. |
Die Schraubenreihen werden beginnend mit der Reihe,
die am weitesten vom Druckpunkt entfernt liegt,
durchnummeriert. |
| Wird ein Überstand des Stirnblechs über dem
Trägerzugflansch angegeben, kann sich die erste Schraubenreihe
in dem Überstand befinden. Diese Reihe wird nur einzeln betrachtet. |
| Schraubenreihen, die sich unterhalb des
unteren Trägerflanschs befinden, werden ignoriert. |
| Für das Beispiel (s.o.) werden also zwei Schraubengruppen gebildet, beginnend mit der ersten Schraubenreihe unterhalb der obersten Quersteife: Gruppe 1: Reihen 2,3, Gruppe 2: 2,3,4. |
|
Der Abstand der Reihen innerhalb einer Schraubengruppe
sollte gleich groß sein. Ist die Differenz zweier
Reihen größer
als 1.5 · min pi, wird die Gruppe geschlossen.
Die folgende Reihe ist nun die Anfangsreihe
der nächsten Gruppe. |
Die Tragfähigkeit einer Schraubenreihe kann
durch Zwischensteifen und/oder eine Dreieckrippe im Überstand
vergrößert werden. |
|
|
|
|
| Programmanwendung |
 |
|
|
Die für die Berechnung notwendigen Trägerabmessungen
können entweder direkt als Parameter vorgegebenen
oder den entsprechenden Profilbezeichnungen
(nur Doppel-T-Profile) entnommen werden (s. Allgemeines zur Programmeingabe). |
|
| Die Stahlsorte ebenso wie die Schraubengüte und
-größe können Listen der gängigen Typen entnommen
werden oder per Hand in das Eigenschaftsblatt eingeben werden (s.
Allgemeines zur Programmeingabe). |
|
 |
|
|
| Die Tragfähigkeit des T-Stummelflanschs kann durch
die Schweißnähte
zwischen Träger
und Stirnblech begrenzt sein (s. Allgemeines zur Programmeingabe). |
| Optional kann die Berücksichtigung
der Schweißnahttragfähigkeit unterdrückt werden. |
|
 |
|
|
Wird zwischen den Trägerflanschen eine Zwischensteife
angeordnet, vergrößert sich
die Tragfähigkeit der
Komponente, da die Ausbreitung des Rissmusters begrenzt wird
(s. äquivalenter
T-Stummel). |
|
 |
|
|
Befindet sich eine
Schraubenreihe im Überstand, kann dort eine
Dreieckrippe als zusätzliche Steife im Überstand
angeordnet werden, um die Tragfähigkeit
der Komponente zu vergrößern
(s. äquivalenter
T-Stummel). |
|
 |
|
|
| Daher kann über
Steifen hinweg keine Gruppenwirkung eintreten. |
|
| Es können beliebig viele Schraubenreihen angeordnet
werden, von denen ggf. nur ein Teil Schraubengruppen bildet. |
| Sind vier Schrauben je Reihe vorhanden, werden
Schraubengruppen nicht untersucht. |
| Der Überstand des Stirnblechs befindet sich auf der
Zugseite, d.h. oben. |
| Für alle Schraubenreihen
müssen die Abstände der Schraubenreihen
voneinander angegeben werden (d.h. Abstand zwischen den Schrauben-reihen
1 und 2: p1-2). |
|
 |
|
|
| Da die Bemessungsgrundlagen innerhalb einer Schraubengruppe
einen gleichmäßigen Abstand der Schraubenreihen erfordern,
wird der mittlere Abstand zwischen den Schraubenreihen einer Gruppe
angesetzt. |
|
| Ist die Anzahl an Schraubenreihen zur Gruppen-bildung
größer als 1 (mindestens zwei Reihen gehören einer Gruppe an), kann
die Bildung der Gruppen vom Anwender vorgegeben oder vom Programm automatisch
durchgeführt werden. |
|
 |
|
| Bei Vorgabe wird nur eine Gruppe mit der vorgegebenen Anzahl
an Mitgliedern festgelegt. |
| Bei automatischer Gruppenbildung können entweder
nur die maßgebende Gruppe oder alle Gruppen protokolliert bzw. nachgewiesen werden. |
|
| Die Ermittlung der Tragfähigkeit einer geschraubten Stirnplattenverbindung erfolgt mit dem Modell des äquivalenten T-Stummels. Zu dessen Steuerung können Optionen folgende gesetzt werden (Erläuterungen s. Modell). |
|
 |
|
|
| Werden vier Schrauben je Reihe angeordnet (aktuell nur bei Trägerstößen), ist der Abstand der äußeren zur inneren Schraube anzugeben. |
Die Berechnungsmethode kann aus verschiedenen Veröffentlichungen (s. äquivalenter T-Stummel)
gewählt werden. |
Die Anzahl an Schrauben kann je Reihe variieren (4: 4 Schrauben je Reihe, 2i: 2 Schrauben am Steg,
2a: 2 Schrauben am Stirnblechrand), jedoch wird die Ermittlung der Tragfähigkeit
an die Erfordernisse der jeweiligen Berechnungsmethode angepasst. |
|
|
|
|
|
 |
|
 |
EC 3-1-8, A.9, Grundkomponente
6, bei Träger-Stützenverbindungen |
|
|
 |
|
| Bild vergrößern |
 |
|
|
|
|
| Anwendungsvoraussetzung |
 |
|
 |
geschraubte Verbindungen können bemessen
werden |
|
|
|
| Tragfähigkeit |
 |
|
| Die Tragfähigkeit einer Verbindung mit Flanschwinkeln
wird mit Hilfe des äquivalenten T-Stummelflansches ermittelt. |
Das Modell des T-Stummelflansches ist für eine
beliebige Anzahl Schraubenreihen mit allerdings nur zwei Schrauben
je Reihe entwickelt worden. Daher können mit dieser Grundkomponente
nur Anschlusskonfigurationen mit zwei Schrauben je Reihe nachgewiesen werden. |
| Bei Verbindungen mit Flanschwinkeln wird nur eine einzelne
Schraubenreihe zwischen Winkel und Stützenflansch für die
Übertragung der Zugkräfte verwendet. |
| Eine allgemeine Beschreibung zur Berechnung des äquivalenten
T-Stummels finden Sie in der Beschreibung
der Basisverbindungen. |
| Die Schraubenreihen zur Verbindung von Winkel und Trägerflansch sind hier nicht von Belang. |
Die wirksame Länge des äquivalenten T-Stummelflansches
einer Flanschwinkel-Verbindung ist mit leff = 0.5 · ba anzusetzen, wobei die Länge des Winkels ba nicht identisch
mit der Breite des Träger- oder Stützenflansches
zu sein braucht. |
|
|
|
|
| Flanschwinkel |
 |
|
|
| Die Breite des offenen Spalts zwischen Träger und
Stützenflansch beeinflusst die Größe des Abstands
m zwischen Schraubenachse und T-Stummelsteg (Winkelschenkel 2). |
|
|
|
|
|
| Programmanwendung |
 |
|
|
Die für die Berechnung notwendigen Winkelabmessungen
können entweder direkt als Parameter vorgegebenen
oder den entsprechenden Profilbezeichnungen
(nur Doppel-T-Profile) entnommen werden (s. Allgemeines zur Programmeingabe). |
|
| Die Stahlsorte ebenso wie die Schraubengüte und
-größe können Listen der gängigen Typen entnommen
werden oder per Hand in das Eigenschaftsblatt eingeben werden (s.
Allgemeines zur Programmeingabe). |
|
 |
|
|
| Zwischen Träger und Stützenflansch kann ein
Spalt entstehen, der das Tragverhalten der Verbindung beeinflusst. |
|
 |
|
|
| Die Spaltbreite sowie der Abstand der Schraubenachse vom Zugrand des
Winkels sind anzugeben. |
|
| Zur Berechnung der Abstützkräfte (T-Stummel-Modell) ist die Dicke des Stützenflanschs anzugeben. |
| Das Bemessungsverfahren kann gewählt werden (Erläuterungen s. Modell). |
|
 |
|
|
| Infolge der Zugbeanspruchung der Schraube wird der Winkelschenkel am Stützenflansch auf Biegung beansprucht, die ggf. die Tragfähigkeit begrenzen. Optional kann die Biegebeanspruchung berücksichtigt werden. |
|
|
|
|
|
 |
|
 |
EC 3-1-8, A.10, Grundkomponente
7, bei Träger-Stützenverbindungen und Trägerstößen |
|
|
 |
|
| Bild vergrößern |
 |
|
|
|
|
| Anwendungsvoraussetzungen |
 |
|
 |
der Querschnitt kann gevoutet sein |
 |
die Beanspruchung setzt sich aus Biegung mit Querkraft zusammen |
 |
es liegt keine Torsion (Wölbkrafttorsion) vor |
|
|
|
| Tragfähigkeit |
 |
|
| Die Tragfähigkeit von Trägerflansch und -steg
bei Druckbeanspruchung ergibt sich zu |
|
| Die plastische Querkrafttragfähigkeit ergibt sich zu |
|
| mit der wirksamen Schubfläche Av für |
|
 |
| gewalzte Profile mit I- und H-Querschnitt, Lastrichtung
parallel zum Steg |
|
 |
|
|
|
 |
| geschweißte Profile mit I- und H-Querschnitt, Lastrichtung
parallel zum Steg |
 |
|
|
|
| Die Abminderung auf Grund der Querkraft erfolgt durch eine Reduzierung der Streckgrenze
auf |
|
| Unterschreitet die einwirkende Querkraft die Hälfte
der plastischen Querkraftbeanspruchbarkeit, wird die Momententragfähigkeit nicht abgemindert. |
|
| Die Biegetragfähigkeit ergibt sich zu |
|
|
|
| wobei sich Wel und Weff auf die ungünstigste Querschnittsfaser mit der maximalen Normalspannung beziehen. |
| Annahme: Weff = Wel |
|
|
|
|
|
| Programmanwendung |
 |
|
|
Die für die Berechnung notwendigen Trägerabmessungen
können entweder direkt als Parameter vorgegebenen
oder den entsprechenden Profilbezeichnungen
(nur Doppel-T-Profile) entnommen werden (s. Allgemeines zur Programmeingabe). |
| Dabei kann die Stahlsorte einer Liste der gängigen
Typen entnommen werden oder per Hand in das Eigenschaftsblatt eingeben
werden (s. Allgemeines zur Programmeingabe). |
| Die Flanschbreite ist nur anzugeben, wenn Schweißnähte
berücksichtigt werden sollen (s.u.). |
|
Ist zur Berechnung der Tragfähigkeit die Kenntnis
von Lasten oder Spannungen notwendig, werden sie
speziell markiert (hier die Bemessungsquerkraft). |
|
| Ist die Eingabe zur Bemessung
nicht vom Profiltyp abhängig, sind profilbezogene Daten 'per Hand' einzugeben. |
| Das Widerstandsmoment W ist von der Querschnittsklasse
(s. Allgemeines zur Programmeingabe) abhängig, die in Abhängigkeit
der Querschnittsbelastung (Biegung, Druck) vorzugeben ist. |
| Die Schubfläche Av wird nur verlangt,
wenn ein Bemessungswert der einwirkenden Querkraft VEd zur Berücksichtigung der Momenten-Querkraft-Interaktion definiert wird. |
| Bei gevouteten Trägern beziehen sich sämtliche
profilbezogenen Daten auf die Gesamthöhe einschließlich
Voute, der dazwischen liegende Trägerflansch wird ignoriert. |
|
| Die Schweißnähte zwischen Stegblech und
Profil sollten bei der Berechnung der Tragfähigkeit berücksichtigt
werden (s. Allgemeines zur Programmeingabe),
da i.A. nicht von einem vollständigen Druckkontakt des
Flansches ausgegangen werden kann. |
|
|
|
|
|
 |
|
 |
EC 3-1-8, A.11, Grundkomponente
8, bei Träger-Stützenverbindungen und Trägerstößen |
|
|
 |
|
| Bild vergrößern |
 |
|
|
|
|
| Anwendungsvoraussetzung |
 |
|
 |
Tragfähigkeitsberechnung eines Trägerstegs
mit lokaler Zugbelastung bei geschraubten Stirnblechverbindungen |
|
|
|
| Tragfähigkeit |
 |
|
| Die Tragfähigkeit eines Trägerstegs mit Zugbeanspruchung
ergibt sich zu |
|
mit der wirksamen Breite beff,t,wb des Trägerstegs
mit Zug, die für eine Stirnblechverbindung mit der wirksamen
Länge des äquivalenten T-Stummel-Modells für das Stirnblech
mit Biegebelastung (s. Grundkomponente
5) gleichzusetzen ist. |
| Die wirksame Länge ist entweder für eine einzelne Schraubenreihe
oder eine Schraubengruppe zu ermitteln. |
|
|
|
|
| Träger |
 |
|
|
|
|
| Programmanwendung |
 |
|
|
Die für die Berechnung notwendigen Trägerabmessungen
können entweder direkt als Parameter vorgegebenen
oder den entsprechenden
Profilbezeichnungen (nur Doppel-T-Profile) entnommen werden (s. Allgemeines
zur
Programmeingabe). |
| Dabei kann die Stahlsorte einer Liste der gängigen
Typen entnommen werden oder per Hand in das Eigenschaftsblatt eingeben
werden (s. Allgemeines zur Programmeingabe). |
| Die wirksame Breite des Trägerstegs für Zug
ist vorzugeben. |
| Sie ist entweder für eine einzelne Schraubenreihe
oder eine Schraubengruppe zu ermitteln. |
|
| Die Schweißnähte zur Verbindung des Profilstegs
mit dem Stirnblech sollten die lokale Beanspruchung übertragen können.
Daher können sie bei der Ermittlung der Tragfähigkeit berücksichtigt
werden (s. Allgemeines zur Programmeingabe). |
|
|
|
|
|
 |
|
 |
EC 3-1-8, A.12 (EC 3-1-1, 8.2.4,
8.2.5 oder 8.2.6), Grundkomponente 9 |
|
|
 |
|
| Bild vergrößern |
 |
|
|
|
|
| Anwendungsvoraussetzungen |
 |
|
 |
Druck: kein Plattenbeulen |
 |
Schub: ohne Torsion |
|
|
|
| Tragfähigkeit |
 |
|
| Zugbelastung |
|
| Der Bemessungswert der Zugbeanspruchbarkeit Ft,p,Rd eines Querschnitts mit Löchern ergibt sich n. EC 3-1-1, 8.2.3
als der kleinere Wert von |
|
 |
| dem Bemessungswert der plastischen Beanspruchbarkeit
des Bruttoquerschnitts |
 |
|
 |
und dem Bemessungswert der Zugbeanspruchbarkeit
des Nettoquerschnitts längs der kritischen Risslinie
durch die Löcher |
 |
|
|
|
| Bei einer Kapazitätsbemessung (EC 8) sollte gelten Npl,Rd < Nu,Rd.
Höherfeste Stähle sollten nicht verwendet werden. |
|
| Für Verbindungen der Kategorie C (gleitfeste Verbindung
im GZT) entspricht die Zugbeanspruchbarkeit Ft,p,Rd |
|
 |
| dem Bemessungswert der Zugbeanspruchbarkeit
des Nettoquerschnitts |
 |
|
|
|
| Druckbelastung |
|
| Der Bemessungswert der Druckbeanspruchbarkeit Fc,p,Rd ist
n. EC 3-1-1, 8.2.4 anzusetzen mit |
|
|
|
| Mit Ausnahme von übergroßen Löchern oder Langlöchern dürfen
Löcher vernachlässigt werden, wenn sie mit Verbindungsmitteln gefüllt sind. |
|
| Schubbelastung |
|
| Der Bemessungswert der Schubbeanspruchbarkeit Vp,Rd ist
n. EC 3-1-1, 8.2.6 anzusetzen mit |
|
| Löcher für Verbindungsmittel sind nur innerhalb
der Verbindungsbereiche zu berücksichtigen. Die Tragfähigkeit
wird dann n. EC 3-1-8, C.4.1.1 ermittelt mit |
|
|
|
|
|
|
| Programmanwendung |
 |
|
|
| Die Stahlsorte kann einer Liste der gängigen Typen
entnommen werden oder per Hand in das Eigenschaftsblatt eingeben werden
(s. Allgemeines zur Programmeingabe). |
|
| Bei Zugbeanspruchung ist zusätzlich die Netto-Blechbreite,
d.h. die Blechbreite unter Lochabzug, anzugeben. |
| Ist dieser Wert = 0, wird die Zugtragfähigkeit des
Nettoquerschnitts nicht berücksichtigt. |
| Die Netto-Querschnittsfläche ergibt sich zu Anet = t · bnet. |
| Der Abminderungsbeiwert kann in Abhängigkeit der Lochform
gewählt oder manuell vorgegeben werden. |
| Bei einer gleitfesten Scherverbindung der Kategorie
C wird die Tragfähigkeit gesondert ermittelt. |
|
| Bei Druckbeanspruchung ist zusätzlich die Querschnittsklasse
des Profils (s. Allgemeines zur Programmeingabe) vorzugeben. |
| Bei normalem Lochspiel der Verbindungsmittel werden
die Löcher nicht berücksichtigt, bei übergroßem Loch oder Langloch
hingegen ist die Netto-Blechbreite anzugeben. |
|
| Bei Schubbeanspruchung müssen i.A. die Löcher
für die Verbindungsmittel nicht berücksichtigt werden, es sei denn,
das Blech befindet sich im Bereich einer Verbindung (z.B. der Schenkel
eines Stegwinkels). |
| In diesem Fall sind die Löcher zu berücksichtigen und
die Netto-Blechbreite ist anzugeben. |
|
|
|
|
|
 |
|
 |
EC 3-1-8, A.13, Grundkomponente
10 |
|
|
 |
|
| Bild vergrößern |
 |
|
|
|
|
| Anwendungsgrenzen |
 |
|
| In dieser Grundkomponente wird die Zugtragfähigkeit
normaler oder Edelstahlschrauben ermittelt. |
Je nach Vorspannung der Schrauben wird die Kategorie
der Zugver-
bindung programmintern gewählt (vorgespannt:
Kategorie E / nicht vorgespannt: Kategorie D). |
|
 |
|
| Nähere Informationen finden Sie in der Programmbeschreibung
der Basisverbindungen zur Berechnung der Zugtragfähigkeit
von Schrauben. |
|
|
| Programmanwendung |
 |
|
|
| Die Schraubenparameter können einer Liste der gängigen
Typen und Güten entnommen werden oder per Hand in das Eigenschaftsblatt
eingeben werden (s. Allgemeines zur Programmeingabe). |
| Schraubenverbindungen werden unterschieden |
 |
| normale Schlüsselweite = nicht vorgespannte Schrauben |
|
|
 |
| große Schlüsselweite = vorgespannte Schrauben (i.A. mit der Regelvorspannkraft) |
|
|
|
|
| Senkschrauben sind stets nicht vorgespannt. |
| Zur Info ist die Kategorie der Zugverbindung angegeben. |
|
| Die Stahlsorte des Verbindungsblechs kann einer Liste der gängigen
Güten entnommen werden oder per Hand in das Eigenschaftsblatt
eingeben werden (s. Allgemeines zur Programmeingabe). |
|
Die Zug- und Durchstanztragfähigkeiten können auch unabhängig
voneinander berechnet werden.
I.d.R. sind jedoch zur Ermittlung der allgemeinen Zugtragfähigkeit beide zu berücksichtigen. |
|
|
|
|
|
 |
|
 |
EC 3-1-8, A.14, Grundkomponente 11 |
|
|
 |
|
| Bild vergrößern |
 |
|
|
|
|
| Anwendungsgrenzen |
 |
|
Je nach Vorspannung der Schrauben wird die Kategorie
der Scherverbindung programmintern gewählt
(gleitfest vorgespannt:
Kategorie C / nicht gleitfest
vorgespannt: Kategorie A). |
| Soll zudem Abscheren mit Zug untersucht werden, wird
die Kategorie der Zugverbindung ebenfalls entsprechend der Vorspannung
gewählt
(vorgespannt: Kategorie E / nicht vorgespannt: Kategorie D). |
In dieser Grundkomponente wird die Abschertragfähigkeit normaler oder
Edelstahl-Schrauben ermittelt. |
| Nähere Informationen finden Sie in der Programmbeschreibung
der Basisverbindungen zur Berechnung der Abschertragfähigkeit von Schrauben. |
|
 |
|
|
| Programmanwendung |
 |
|
|
| Die Schraubenparameter können Listen der gängigen
Typen und Güten entnommen werden oder per Hand in das Eigenschaftsblatt
eingeben werden (s. Allgemeines zur Programmeingabe). |
| Schraubenverbindungen werden unterschieden |
 |
| normale Schlüsselweite = nicht vorgespannte Schrauben |
|
|
 |
| große Schlüsselweite = vorgespannte Schrauben (Regelvorspannkraft) |
|
|
 |
| gleitfeste Verbindung (bei großer Schlüsselweite) = kontrolliert vorgespannte Schrauben |
|
|
|
|
| Bei gleitfester Verbindung sind die Vorspannkraft
der Schraube und die Gleitflächenklasse festzulegen. |
| Senkschrauben sind stets nicht vorgespannt. |
| Zur Info ist die Kategorie der Scher- und ggf. der Zugverbindung angegeben. |
|
| Die Schertragfähigkeit ist von der Lage der Scherfuge
zum Schraubenschaft abhängig. Sie ist geringer, wenn das Gewinde
in der Scherfuge liegt. |
| Ein Futterblech ist anzugeben, wenn die
Schraube die Scherkraft über das Futterblech überträgt. |
|
Liegt keine gleitfeste Verbindung vor, beeinflusst
die Länge der Verbindung die Tragfähigkeit (s. EC 3-1-8, 5.11(7)).
Der Abstand von der ersten zur letzten Schraube
in der Kraftrichtung Lj ist anzugeben. |
| Wird die Schraube neben der Scherbelastung auch durch Zug beansprucht, ist die Interaktion von Abscheren mit Zug zu untersuchen. |
| Bei gleitfesten Verbindungen mindert zudem die Zugkraft
Ft,Ed die Vorspannkraft ab und ist daher zu berücksichtigen. |
| Um die Tragfähigkeit für jede Lastkombination zuverlässig
zu bestimmen, sollte hier die maximal auf eine Schraube einwirkende Zugkraft angegeben werden. |
|
|
|
|
|
 |
|
 |
EC 3-1-8, A.15, Grundkomponente 12 |
|
|
 |
|
| Bild vergrößern |
 |
|
|
|
|
| Anwendungsgrenzen |
 |
|
| In dieser Grundkomponente wird die Lochleibungstragfähigkeit
normaler oder Edelstahl-Schrauben in Scherverbindungen der Kategorie A ermittelt. |
| Nähere Informationen finden Sie in der Programmbeschreibung
der Basisverbindungen zur Berechnung der Lochleibungstragfähigkeit von Schrauben. |
|
|
|
| Programmanwendung |
 |
|
|
| Die Stahlgüten und Schraubenparameter können
Listen der gängigen Typen und Güten entnommen werden oder
per Hand in das Eigenschaftsblatt eingeben werden (s. Allgemeines
zur Programmeingabe). |
| Die Blechdicke ist anzugeben. |
| Außerdem kann ein Futterblech zwischen den Blechen
berücksichtigt werden. |
| Hinweis: Es wird nur ein Blech berechnet, das zweite
(Anschluss-) Blech ist gesondert zu untersuchen. |
|
| Alternativ kann die Berechnung der Tragfähigkeit
für einen einseitig angeschlossenen
Winkel erfolgen (s. Schraubengruppen). |
| Zur Eingabe des Winkelprofils s. Allgemeines zur Programmeingabe. |
| Bei ungleichen Schenkellängen ist der anliegende Schenkel zu kennzeichnen. |
| Die Blechdicke t entspricht der Dicke des anliegenden
Schenkels. Der Anschluss ist einschnittig. |
| Die Lochleibungstragfähigkeit gesamt ergibt sich
als das Minimum aus der Lochleibungstragfähigkeit und der Zugtragfähigkeit des Winkelschenkels. |
|
| Die Lochleibungstragfähigkeit betrifft Schraube
und Anschlussblech, da die Scherkraft die Kontaktflächen von
Schraube und Blech belastet. |
Das Blech kann, je nach Position der Schraube, einen
größeren oder kleineren Widerstand bieten. Daher
sind
neben der Blechdicke (s.o.) auch die Randabstände e und die Abstände
p zu den Nachbarschrauben (Lochabstände) einzugeben. |
| Index 1 bezeichnet die Abstände in Kraftrichtung, Index 2 quer dazu. |
| Mit ns wird die Anzahl an Schrauben je Schraubenreihe
bezeichnet, für die die Tragfähigkeit ermittelt werden soll. |
| Ist kein Lochabstand angegeben, muss die zugehörige Anzahl an
Reihen 1 sein. |
| Ist hingegen ein Lochabstand angegeben und nur eine
Reihe maßgebend (p > 0 und ns = 1), werden die irrelevanten
Schraubenreihen dezent dargestellt. Sie dienen nur zur Verdeutlichung
des Schraubenbilds (s. Bild oben). |
|
| Wenn sich in Kraftrichtung nur eine Schraubenreihe
befindet und ein einschnittiger Anschluss vorliegt, kann die Begrenzung
der Tragfähigkeit n. EC 3-1-8, 5.9.1(4) optional an-/ausgeschaltet werden. |
|
| Sind mehr als zwei Schrauben in Kraftrichtung angegeben,
reduziert sich n. EC 3-1-8, 5.11(7) ggf. die Tragfähigkeit bei langen Anschlüssen.
Optional kann sie an-/ausgeschaltet werden. |
| Zur Info wird der Abstand zwischen erster und letzter Schraube Lj angezeigt. |
|
| Optional können die Verformungen aufgrund
der Lochleibung der Schraube im Blech begrenzt werden (s. Basisverbindungen). |
|
| Bei mehreren Schrauben sollte zusätzlich
das Blockversagen untersucht werden (s. Schraubengruppen). |
|
|
|
|
|
 |
|
 |
Sonderkomponente 15, nur bei Trägerstößen |
|
|
 |
|
| Bild vergrößern |
 |
|
|
|
|
| Anwendungsvoraussetzungen |
 |
|
 |
geschraubte Stirnblechstöße mit zwischenliegender
Trennschicht können
bemessen werden |
 |
die Trennschicht ist nach Art
des Kerncompactlagers der Fa.
Calenberg Ingenieure GmbH auszuführen |
|
|
|
| Tragfähigkeit |
 |
|
| Der Nachweis der Trennschicht folgt L.
Nasdala; die Tragfähigkeit wird nach Y.
Ciupack ermittelt. |
|
| Zunächst werden aus der gegebenen Belastung die linearen
Randspannungen der Trennschicht σo und σu ermittelt.
Daraus ergibt sich der Spannungsnulldurchgang bei z0. |
|
 |
|
| Gibt es über den Querschnitt einen Bereich mit σ > 0
(Zugbereich), ist die vorhandene Schraubenkraft zu ermitteln. |
| Die Schraubenkraft wird über Integration der Zugspannungen berechnet |
|
|
| Die effektive Länge der Trennschicht ist der Bereich,
in dem eine konstante mittlere Druckspannung angenommen werden kann. |
|
 |
|
| Die Anzahl der Schrauben im effektiven Druckbereich
(d.h. innerhalb der Fläche hm · bm) wird bei
der Berechnung der zulässigen mittleren Druckspannung der Trennschicht
berücksichtigt. Die Bemessung erfolgt mit Hilfe des Formfaktors. |
| Für das bisherige Material (Zulassung als Baulager
bis 2016, wurde zurückgezogen) ergibt sich |
|
 |
|
Der Nachweis des aktuellen Materials (Zulassung bis 2029) basiert auf Bemessungsgrößen.
Für Schichtdicken bis 15 mm ergibt sich |
|
 |
|
| Eine Schichtdicke von 20 mm ergibt |
|
 |
|
| Die Bemessungsspannung wird vereinfachend aus der (charakteristischen)
mittleren Druckspannung berechnet mit |
|
|
 |
| Nachweis der
Schrauben auf Biegung |
|
|
|
| Bei Querkraftbeanspruchung bietet die Trennschicht
zwischen den Stirnplatten nur wenig Widerstand gegen Biegung. |
| Daher sind die Schrauben mit dem Gewinde in der Scherfuge
auf Abscheren und Biegung nachzuweisen. |
| Die Querkraft wird nur von den Druckschrauben übertragen. |
|
| Der Nachweis erfolgt analog zum Nachweis einer Bolzenverbindung nach
EC 3-1-8, 3.13, wobei im Unterschied zum Bolzen das Gewinde in der
Scherfuge liegt, und daher die Querschnittswerte aus dem Spannungsquerschnitt
der Schrauben gebildet werden. |
|
 |
|
 |
| Tragfähigkeit
eines Stirnblechstoßes mit thermischer Trennschicht |
|
|
|
| Unter der Annahme, dass die Druckkraft vom Trägerflansch über
das Stirnblech (Ausbreitungsmaß 1:1.25) in die Trennschicht (Ausbreitungsmaß 1:1)
eingeleitet wird, wird die effektive Breite in der Mitte der Trennschicht
berechnet. Die Überstände des Stirnblechs und der Trennschicht vom
Trägerflansch sind dabei zu berücksichtigen. |
|
 |
|
| Zur Ermittlung der Tragfähigkeit ist die effektive
Fläche mit der zulässigen Bemessungsfestigkeit (fe = σm,zul / γMe)
zu multiplizieren. |
|
|
|
|
|
| Programmanwendung |
 |
|
|
| Es werden nur die wesentlichen Parameter zur Berechnung
der Tragfähigkeit der Grundkomponente 15 angefordert. |
|
| Fa. Calenberg Ingenieure GmbH stellt
das Material des Kerncompaktlagers mit der Zulassung als Baulager
bis 2016 um. Das aktuelle Material hat eine Zulassung bis 2029. |
| Zur Beurteilung bestehender Objekte kann das veraltete Material weiterhin
ausgewählt werden. |
| Die Trennschicht wird mit den Dicken 5 mm, 10 mm, 15 mm, 20 mm angeboten. |
| Die Dicke der Trennschicht sollte die Stirnplattendicke
bzw. 20 mm nicht überschreiten. |
Die Trennschicht befindet sich im Bereich des Trägers
und sollte in Breiten- und Höhenrichtung sämtliche
Schrauben mit ausreichendem Überstand einschließen. |
Die Abmessungen sollten so gewählt sein, dass
die Trennschicht aufgrund der möglichen Stauchungsauswölbung
nicht über die Stirnplatten hinausragt, d.h. der Abstand zum Stirnblechrand
sollte mindestens der Trennschichtdicke entsprechen üe ≥ te. |
Für die Berechnung der Tragfähigkeit ist
die Schweißnahtdicke (Kehlnaht, je Seite) am Druckflansch anzugeben.
Die Schweißnähte werden nicht bemessen. |
| Es kann eine für alle Schrauben einheitliche Vorspannkraft
(je Schraube) vorgegeben werden. |
|
|
|
| Es kann eine beliebig große Anzahl an Schraubenreihen
mit 2 oder 4 Schrauben je Reihe eingegeben werden. |
| Bezogen auf die Trennschichtoberkante wird die Systemachse
des Trägers festgelegt. |
| Auf diese beziehen sich die Abstände der Schraubenreihen. |
|
| Die Schrauben werden auf Zug sowie Abscheren, Lochleibung
und Biegung bemessen. |
|
|
|
| Zur Ermittlung der gedrückten Fläche der
Trennschicht sind die einwirkenden Schnittgrößen (nur einachsig,
belastet um die starke Achse) im EC3-Koordinatensystem anzugeben. |
| Die Anwendung des Verfahrens von L. Nasdala setzt voraus,
dass Biegemoment und Normalkraft als charakteristische Größen
in der Systemachse gegeben sind. |
| Die Schrauben werden mit der Bemessungsquerkraft in
der Anschlussebene nachgewiesen. |
|
|
|
|
|
 |
|
 |
EC 3-1-8, A.22, Grundkomponente 19 |
|
|
 |
|
| Bild vergrößern |
 |
|
|
|
|
| Anwendungsgrenzen |
 |
|
| In dieser Grundkomponente wird die Tragfähigkeit
einer doppelseitigen Schweißnaht ermittelt. |
Nähere Informationen finden Sie in der Programmbeschreibung
der Basisverbindungen zur Berechnung
der Schweißnähte. |
|
|
|
| Programmanwendung |
 |
|
|
| Die Schweißnaht kann als Kehl- oder Stumpfnaht
ausgeführt sein. |
| Die wirksame Nahtlänge und die Nahtdicke je Naht
sowie die Blechdicken der zu verschweißenden Bauteile
sind anzugeben. Bei einer Nahtlänge von 0 werden die Lasten
und resultierende Größen pro lfd. Meter dokumentiert. |
| Da die Belastung in der Nahtwurzel je Seite angegeben
wird, sind sowohl der Öffnungswinkel
der Naht als auch die Anordnung der Nähte (ein- oder beidseitig)
irrelevant. |
| Die Stahlgüten der Bleche können Listen der
gängigen Güten entnommen werden oder per Hand in das Eigenschaftsblatt
eingeben werden (s. Allgemeines zur Programmeingabe). |
Ist eine Stumpfnaht durchgeschweißt, braucht keine
Nahtdicke vorgegeben zu werden, da sie der
Blechdicke t2 entspricht. |
| Ist der Öffnungswinkel einer Stumpfnaht mit φ = 0°
angegeben, wird in den Darstellungen ein geschweißter
Trägerstoß gezeichnet; die Berechnung ändert sich
jedoch nicht. Die Nahtdicke entspricht der geringeren Blechdicke. |
|
 |
|
|
| Es können entweder zwei Bleche miteinander verschweißt werden oder der Schenkel eines Winkelprofils wird auf Blech 1 geschweißt. |
| Werden zwei Bleche miteinander verschweißt, können
bei der Ermittlung der Tragfähigkeit von Kehlnähten Futterbleche
berücksichtigt werden. Die Nahtdicke wird überprüft. |
| Alternativ kann anstelle des Blechs 2 ein Winkelprofil
auf Blech 1 geschweißt werden (zur Eingabe des Winkelprofils
s. Allgemeines zur Programmeingabe). |
|
| Bei ungleichen Schenkellängen ist der anliegende
Schenkel zu kennzeichnen. |
|
|
|
|
|
 |
|
 |
EC 3-1-8, A.23, Grundkomponente
20, bei Träger-Stützenverbindungen und Trägerstößen |
|
|
|
 |
|
| Bild vergrößern |
 |
|
|
|
|
| Anwendungsvoraussetzungen |
 |
|
| Mit dieser Grundkomponente wird die Tragfähigkeit
einer Trägervoute ermittelt. |
| Dazu werden für die Voute-Stützen-Verbindung
der gevoutete Trägerflansch und -steg mit Druckbeanspruchung
(Grundkomponente 7) und für die Voute-Träger-Verbindung
der Trägersteg mit Querdruckbeanspruchung (Grundkomponente 2) untersucht. |
|
|
|
|
|
| Tragfähigkeit |
 |
|
| Die Ermittlung der Tragfähigkeit erfolgt |
|
|
|
| Die Tragfähigkeiten der beiden Grundkomponenten
Gk7: Fc,f,Rd und Gk2: Fc,w,Rd werden auf die
Ebene senkrecht zum Voutenflansch bezogen und zur Gesamttragfähigkeit zusammengefasst. |
|
|
| Dafür gelten folgende Voraussetzungen, die stets abgeprüft werden |
|
 |
die Stahlgüte der Voute entspricht der Stahlgüte
des Trägers |
 |
es muss gelten: tf,v ≥ tf,b und bf,v ≥ bf,b und tw,v ≥ tw,b |
 |
Winkel αv ≤ 45° |
|
|
|
|
|
| Verbindung Voute-Stütze n. Grundkomponente 7 (Voutenflansch und -steg mit Druckbeanspruchung) |
 |
|
Die Profilhöhe entspricht der Trägerhöhe
einschließlich Voute h = hb + hv mit hv = Lv · tan αv,
für die Flanschdicke gilt tf = tfv. |
| Die Widerstandsmomente sind für den Gesamtquerschnitt
(Träger mit Voute ohne zwischenliegenden Trägerdruckflansch)
zu ermitteln. Dabei gilt |
 |
| n. EC 3-1-8 2025 sowie NA-DE: Der
Trägersteg wird nicht berücksichtigt. |
|
|
 |
| n. EC 3-1-8 2010: Beträgt die Höhe des Trägers
einschließlich Voute mehr als 600 mm, ist der Beitrag des Trägerstegs
zur Tragfähigkeit bei Druckbeanspruchung auf 20 % zu begrenzen. |
|
|
|
| Nur bei einer Berechnung n. EC 3-1-8'2010 ohne NA-DE
ist eine Querkraft zur Berücksichtigung
der Momenten-Querkraft-Interaktion zu berücksichtigen. |
| Weitere Informationen zur Berechnung der Tragfähigkeit
finden Sie hier. |
|
|
|
|
| Verbindung Voute-Träger n. Grundkomponente 2 (Trägersteg mit Querdruckbeanspruchung) |
 |
|
Zur Berechnung der Steghöhe zwischen den Ausrundungen
wird tfo = tfu = tf,b angenommen,
daraus ergibt sich
db = hb - 2 · (tf,b + sb). |
| Die Anordnung von kurzen oder zwischenliegenden Stegsteifen wird berücksichtigt. |
| Weitere Informationen zur Berechnung der Tragfähigkeit
finden Sie hier. |
|
|
|
|
| Programmanwendung |
 |
|
|
| Die für die Berechnung notwendigen Träger-
und Voutenabmessungen können
entweder direkt als Parameter vorgegebenen
oder den entsprechenden
Profilbezeichnungen
(Träger nur Doppel-T-Profile, Voute nur T-Profile) entnommen
werden (s. Allgemeines zur Programmeingabe). |
| Dabei kann die Stahlsorte einer Liste der gängigen
Typen entnommen werden oder per Hand in das Eigenschaftsblatt eingeben
werden (s. Allgemeines zur Programmeingabe). |
| Die Bedeutungen der geometrischen Parameter können
der obigen Skizze entnommen werden. |
| Die Tragfähigkeit einer Voute wird aus den Tragfähigkeiten an zwei verschiedenen
Stellen berechnet. |
| Es ist dem Anwender freigestellt, |
|
 |
| nur den Anschnitt Voute-Stütze oder |
|
|
 |
| nur den Lagerbereich Voute-Träger |
|
|
|
| zu berücksichtigen. |
|
| Zur Ermittlung der Tragfähigkeiten sind weitere
Eingaben notwendig |
|
| Die Querschnittsklasse des Voutenflanschs wird überprüft. |
|
Ist zur Berechnung der Tragfähigkeit die Kenntnis
von Lasten oder Spannungen notwendig, werden sie
speziell markiert (hier die Längsdruckspannung). |
| Die maximale Längsdruckspannung im Steg
(am Ende des Ausrundungsradius' bei einem gewalzten Profil oder am
Schweißnahtübergang bei einem geschweißten Profil) infolge Normalkraft und Biegemoment im Träger am Anschnitt zur Voute ist
anzugeben. |
| Außerdem können zur Verstärkung des Trägerprofils zwischenliegende oder kurze Stegsteifen eingesetzt werden. |
| Zwischenliegende Steifen werden am Trägersteg und an beiden Flanschen befestigt, während kurze Steifen (lst < hw,b, hwb = hb - 2 · tf,b) nur am Steg und Druckflansch angeschweißt sind. |
| Ist die Aussparung der Steifen am Steg-Flansch-Kontakt
des Trägers nicht angegeben, wird cst = 1.5 · sb gesetzt. |
| Die Stahlsorte der Stegsteifen kann unabhängig von derjenigen des Trägers festgelegt werden. |
|
| Die Tragfähigkeit der Schweißnähte zwischen Voutenflansch
und Anschlussbauteil sollten bei der Berechnung kontrolliert werden
(s. Allgemeines zur Programmeingabe),
da i.A. nicht von einem vollständigen Druckkontakt des
Flanschs an das Anschlussbauteil ausgegangen werden kann. |
|
|
|
|
|
 |
|
| Einseitig angeschlossener
Winkel unter Zugbelastung |
 |
|
Der Bemessungswert der Beanspruchbarkeit von asymmetrischen
Bau-
teilen oder symmetrischen Bauteilen, deren Anschluss asymmetrisch
erfolgt, sind i.A. unter Berücksichtigung der Exzentrizitäten zu berechnen. |
| Bei einseitig mit einer einzelnen Schraubenreihe in
Kraftrichtung angeschlossenen Winkeln (p2 = 0) darf das Exzentrizitätsmoment
vernachlässigt werden, indem die Zugkraft ermittelt wird |
|
 |
|
|
|
|
|
|
| Widerstand gegen Blockversagen |
 |
|
| Bei geschraubten Verbindungen kann nicht nur
eine einzelne Schraube, sondern es können auch mehrere
Schrauben im Verbund versagen. |
| Das Blockversagen wird durch das Schubversagen
des Blechs entlang der schubbeanspruchten Schraubenlochreihe
in Kombination mit dem Zugversagen des Blechs entlang der zugbeanspruchten
Schraubenlochreihe am Kopf der Schraubengruppe verursacht. |
| Es wird unterschieden zwischen gleichmäßiger
Zugbeanspruchung |
|
| und ungleichmäßiger Zugbeanspruchung
(bei mehreren Schraubenreihen im Zugbereich) |
|
|
|
Die Brutto-Schubfläche wird n. EC 3-1-1,
8.2.6(3), bestimmt; die Netto-Querschnittsflächen sind
mit Lochabzug zu berechnen. |
|
|
|
|
|
 |
|
| Stegsteifen können zur Verstärkung sowohl
des Profilstegs als auch des Druckflanschs eingesetzt werden. |
| Sie
werden beidseitig
des Stegs entweder an einen (zweiseitiger Anschluss) oder beide (dreiseitiger
Anschluss) Flansche angeschweißt. |
Sind die Stegsteifen als zwischenliegende
Steifen (dreiseitiger Anschluss, Rippen) ausgeführt, begrenzen
sie
außerdem das Schub- und Beulfeld im Profilsteg und können
dadurch die Tragfähigkeit der Verbindung wesentlich erhöhen. |
|
| Voraussetzung zur Wirksamkeit der Rippen ist, dass
sie selbst nicht beulgefährdet sind. |
| Je nach Nachweisverfahren
wird die Querschnittsklasse der
Bleche über das c/t-Verhältnis bestimmt. |
Ist die zulässige Q-Klasse 2 (Elastisch-Plastisch)
oder 3 (Elastisch-Elastisch) überschritten, wird die Verbindung
als unausgesteift betrachtet. |
|
| Für den Nachweis gelten folgende
Annahmen |
|
 |
| die aus dem Flansch in die Steifen einzuleitende
Kraft verteilt sich gleichmäßig über
die Breite 2·bR+ tw |
|
 |
bei Walzprofilen wird der im Bereich von
Steg und Ausrundungen (2·r + tw)
wirkende Teil der Kraft unmittelbar
in den Steg eingeleitet. |
| Bei geschweißten Profilen wird die
gesamte Kraft über die Rippen gelenkt. |
|
|
|
| Die Querschnitte der Bleche und die Schweißnähte werden
jeweils am Steg und am Flansch nachgewiesen. |
|
| zweiseitiger Anschluss |
 |
Bei zweiseitigem Anschluss (Teilrippe)
wird eine dreiecksförmige Spannungsverteilung im
Blech angenommen, der Hebelarm ergibt
sich zu eH =
lR - l1/3. |
| Bei dreiseitigem Rippenanschluss
(Vollrippe) ist der Hebelarm eH = lR. |
Die Bemessungslast auf dem Flansch FEd wird
in die Bemessungs-
größen F und
H transformiert. |
|
|
|
 |
|
| Die Querschnittsnachweise erfolgen für folgende
Bemessungsgrößen |
|
|
|
Die Schweißnähte können entweder nach
dem vereinfachten oder dem richtungsbezogenen Verfahren
nachgewiesen
werden. |
| Dazu werden die Bemessungsgrößen je nach
Verfahren berechnet mit |
|
|
|
Da die Beschreibung der Schweißnahtnachweise nach
EC 3 programmübergreifend identisch ist, wird auf die
allgemeine Beschreibung des Schweißnahtnachweises verwiesen. |
|
| dreiseitiger Anschluss |
 |
Bei dreiseitigem Rippenanschluss (Vollrippe)
ergibt sich der Hebelarm
zu eH =
lR. |
Die Bemessungslast auf dem Flansch FEd wird
in die Bemessungs-
größen F und
H (s.o.) transformiert. |
| Querschnitts- und Schweißnahtnachweise folgen ebenfalls
der o.a. Vorgehensweise. |
|
 |
|
|
|
|
 |
|
 |
| Schrauben können
auf Abscheren, Lochleibung und/oder Zug (EC 3-1-8, 5.4, 5.6) beansprucht werden. |
|
|
|
|
|
| Zur Ermittlung der Tragfähigkeit sind Schraubenverbindungen
in Kategorien einzuteilen. |
|
 |
Scherbeanspruchung |
|
 |
Kategorie A: Scher-/Lochleibungsverbindung für
Schrauben aller Festigkeitsklassen ohne Vorspannung |
|
 |
Bemessungswert der Abschertragfähigkeit |
 |
Bemessungswert der Lochleibungstragfähigkeit |
|
|
 |
Kategorie B: Gleitfeste Verbindung (GZG)
für
hochfeste gleitfest vorgespannte Schrauben |
|
 |
Bemessungswert des Gleitwiderstands im GZG |
 |
Bemessungswert der Abschertragfähigkeit (s. Kat. A) |
 |
Bemessungswert der Lochleibungstragfähigkeit (s. Kat.
A) |
|
|
 |
Kategorie C: Gleitfeste Verbindung (GZT) für
hochfeste gleitfest vorgespannte Schrauben |
|
 |
Bemessungswert des Gleitwiderstands im GZT |
 |
Bemessungswert der Lochleibungstragfähigkeit (s. Kat.
A, nur EC 3-1-8:2010) |
|
|
 |
Zugbeanspruchung |
|
 |
Kategorie D: Zugbeanspruchung für Schrauben
aller Festigkeitsklassen ohne Vorspannung |
|
 |
Bemessungswert der Zugtragfähigkeit |
 |
Bemessungswert der Durchstanztragfähigkeit |
|
|
 |
Kategorie E: Zugbeanspruchung für
hochfeste gleitfest vorgespannte Schrauben |
|
 |
Bemessungswert der Zugtragfähigkeit (s. Kat. D) |
 |
Bemessungswert der Durchstanztragfähigkeit (s. Kat. D) |
|
|
| Bei Zugverbindungen: Bemessungswert des plastischen
Widerstands des Nettoquerschnitts im kritischen Schnitt durch
die Schraubenlöcher (Kat. A,B: nicht EC 3-1-8:2010) |
|
|
|
 |
Berechnung der Tragfähigkeiten von Schrauben |
|
 |
|
| Die Abstände sind folgendermaßen definiert,
wobei sich die Randabstände je Blech unterscheiden können. |
|
|
|
| Rand- und Lochabstände werden nach EC 3-1-8, Tab. 5.8,
überprüft. |
| Ist der Lochabstand p1 = 0, besteht der
Anschluss nur aus einer Schraubenreihe. Bei einschnittigen Anschlüssen
mit nur einer Schraubenreihe ist EC 3-1-8, 5.9.1(4)+(5), zu beachten. |
| Ist auch p2 = 0, besteht die Verbindung
nur aus einer Schraube. |
| |
 |
Abscheren je Scherfuge |
|
 |
Schraube |
|
 |
|
|
| Die Abschertragfähigkeit wird nur angesetzt, wenn
die Schraubenlöcher in Kraftrichtung ein normales Lochspiel
haben (EC 3-1-8, 5.9.1(1)). |
| Übertragen Schrauben Scherkräfte
über Futterbleche, ist die Schertragfähigkeit
abzumindern mit (EC 3-1-8, 5.9.1(6)) |
|
|
 |
Lochleibung |
|
|
| n. EC 3-1-8:2010 |
|
|
|
| Beiwert αd in Kraftrichtung |
|
 |
|
| Beiwert k1 quer zur Kraftrichtung |
 |
|
|
| Die Lochleibungstragfähigkeit wird bei Schraubenverbindungen
mit großem Lochspiel auf 80%, mit Langlöchern, deren Längsachse
quer zur Kraftrichtung verläuft, auf 60% abgemindert (EC 3-1-8,
Tab.3.4, 1)). |
|
| n. EC 3-1-8:2025 |
|
 |
|
| Wenn Lochleibungsverformungen begrenzt werden müssen,
gilt |
|
|
|
| Bei Schraubenverbindungen mit Langlöchern, deren Längsachse
quer zur Kraftrichtung verläuft wird die Lochleibungstragfähigkeit
mit dem Beiwert kb multipliziert (EC 3-1-8, 5.9.1(9)) |
|
|
|
| Bei Randschrauben quer zur Kraftrichtung ist die Lochleibungstragfähigkeit
zu begrenzen mit (EC 3-1-8, Tab. 5.9 d), nicht EC 3-1-8:2010) |
|
|
|
|
| n. EC 3-1-8:2010 und EC 3-1-8:2025 |
|
| Bei Senkschrauben wird bei der Berechnung der Lochleibungstragfähigkeit
die Blechdicke t abzüglich der Hälfte der Senkung angesetzt
(EC 3-1-8, Tab.5.9 b)). |
| In einschnittigen Anschlüssen
mit nur einer Schraubenreihe (p1 = 0 bzw. n = 1)
ist die Lochleibungstragfähigkeit zu |
| begrenzen (s. EC 3-1-8, 5.9.1(4)) |
 |
|
|
|
|
 |
Zug |
|
 |
| Schraube |
 |
| Bei Senkschrauben wird davon ausgegangen, dass sie den maßgebenden Normen entsprechen. |
|
|
|
 |
Durchstanzen |
|
 |
| Schraube |
|
 |
|
|
|
 |
| Senkschraube (nicht EC 3-1-8:2010) |
|
 |
|
|
|
 |
Kombination von Abscheren und Zug |
|
|
|
 |
Gleiten |
|
 |
| im GZT |
 |
|
|
|
 |
| im GZG |
 |
|
|
|
Bei kombinierter Abscher- und Zugbeanspruchung ist der
Gleitwiderstand je Schraube wie folgt anzunehmen
(EC 3-1-8, 5.10.2) |
|
 |
| im GZT |
 |
|
|
|
 |
| im GZG |
 |
|
|
|
 |
Querschnittsversagen bei Zugverbindungen |
|
Bemessungswert des plastischen Widerstands des Nettoquerschnitts
im kritischen Schnitt durch die
Schraubenlöcher (EC 3-1-1, 8.2.3(5)) |
|
|
|
 |
Mindesteinschraubtiefe bei Sacklochverbindungen
von Schrauben |
|
|
| n. EC 3-1-8:2010 |
| Auf der sicheren Seite liegend wird die Mindesteinschraubtiefe
n. EC 3-1-8/NA, NCI zu 3.5, berechnet mit |
|
|
|
| n. EC 3-1-8:2025 |
| Die Mindesteinschraubtiefe ergibt sich zu |
|
|
| Schraubengrößen < M12 und > M36 sind nicht zugelassen. |
| Ebenso sind nur die in der Tabelle aufgeführten Schraubenfestigkeiten zugelassen. |
|
|
|
|
|
|
|
 |
| |
 |
Schweißverbindungen können
nach EC 3-1-8, 6, bemessen werden, wenn die zu verschweißenden
Blechdicken 3 mm (4 mm in EC 3-1-8:2010) bzw. bei Hohlprofilen
1.5 mm (2.5 mm in EC 3-1-8:2010) oder mehr aufweisen. |
|
|
| Kehlnähte |
 |
| Die Schweißnaht kann
voll ausgeführt sein, d.h. die wirksame Naht-länge entspricht
der vorhandenen Nahtlänge. Andernfalls ist die vorhandene Länge
um den 2-fachen Betrag der Kehlnahtdicke zu reduzieren. |
Eine Länge von weniger als 30 mm oder des 6-fachen
der Nahtdicke sollte zur Übertragung von Kräften nicht
in Betracht gezogen werden
(EC 3-1-8, 6.5.1(2)). |
| Die wirksame Nahtdicke einer Kehlnaht sollte bei Blechdicken ≥ 3 mm mind. 3 mm betragen (EC 3-1-8, 6.5.2(2)). |
|
 |
|
|
|
| Nach NA-DE ist zusätzlich bei einer Blechdicke
von 3 mm und mehr eine Mindestdicke von |
|
| vorgeschrieben. |
| In Anlehnung an DIN 18800 wird auch nach NA-DE
die maximale Schweißnahtdicke
überprüft |
|
| Ist kein Futterblech angeordnet (tp = 0), kann die
Kehlnaht tief eingebrannt sein, d.h. die Naht trägt gegenüber
einer nicht eingebrannten Kehlnaht nicht so stark auf. Der Wert
der wirksamen Nahtdicke wird davon nicht beeinflusst! |
| Die maximale Einbrandtiefe ist an geometrische Gegebenheiten
geknüpft (s.a. T-Stöße in EC 3-1-8, 6.7.3): |
|
|
|
| Der Öffnungswinkel bezeichnet den Winkel zwischen
den zu verschweißenden Anschlussblechen und sollte bei Kehlnähten
zwischen 60° und 120° liegen (EC 3-1-8, 6.3.2.1(1)). |
| Kleinere Winkel sind zugelassen, werden aber wie nicht
durchgeschweißte Stumpfnähte behandelt. |
| Bei Stahlsorten kleiner als S460 (nicht hochfester
Stahl) sollte die Festigkeit des Schweißzusatzwerkstoffs der
Festigkeit des schwächeren der zu verschweißenden Bleche
entsprechen (EC 3-1-8, 6.2). |
Bei hochfesten Stahlsorten darf der Schweißzusatzwerkstoff
eine geringere Festigkeit als der Grundwerkstoff aufweisen. Es werden
die Werkstoffe G42, G46, G69 und G89 vorgehalten, alternativ können
die Parameter
manuell vorgegeben werden. |
|
Die Tragfähigkeit von Kehlnähten kann mit
Hilfe des richtungsbezogenen Verfahrens oder des vereinfachten
Verfahrens ermittelt werden. |
|
 |
| Richtungsbezogenes Verfahren (EC 3-1-8, 6.5.3.2) |
|
|
|
| Die Kräfte werden aufgeteilt in Anteile parallel
und rechtwinklig zur Längsachse der Schweißnaht und normal
und orthogonal zur Lage der wirksamen Kehlnahtfläche. |
| Die Lage der wirksamen Kehlnahtfläche wird im Wurzelpunkt
konzentriert angenommen. |
|
|
|
| Die auf die Kehlnaht einwirkenden Spannungen ergeben
sich zu |
|
|
|
| Die Tragfähigkeit einer Kehlnaht ist ausreichend,
wenn die folgenden Bedingungen erfüllt sind |
|
|
|
| Bei hochfesten Blechen sollte die Bedingung erfüllt
sein |
|
|
|
|
 |
| Vereinfachtes Verfahren (EC 3-1-8, 6.5.3.3) |
|
|
|
| Die Resultierende aller auf die Kehlnaht einwirkenden
Kräfte muss die folgende Bedingung erfüllen |
|
|
|
| Bei hochfesten Blechen sollte die Bedingung erfüllt
sein |
|
|
|
|
| |
| Anordnung von Futterblechen |
 |
|
| Das Futterblech sollte bündig zum Rand des zu
verschweißenden Bauteils angepasst sein (EC 3-1-8, 6.4(1)). |
| Es gilt |
|
|
|
 |
|
|
|
| Stumpfnähte |
 |
Stumpfnähte können durchgeschweißt
oder nicht durchgeschweißt
ausgeführt werden. |
| Eine durchgeschweißte Stumpfnaht ist eine Schweißnaht
mit vollständigem Einbrand und vollständiger
Verschmelzung des Schweißwerkstoffs mit dem Grundmaterial über
die gesamte Dicke der Verbindung
EC 3-1-8, 6.3.4(1)), d.h. a = t2 / 2
bei beidseitiger Schweißung bzw. a = t2 bei
einseitiger Schweißung. |
| Bei einer nicht durchgeschweißten Stumpfnaht
ist die Durchschweißung daher kleiner als die volle Dicke des
Grundmaterials (EC 3-1-8, 6.3.4(2)). |
|
 |
|
|
|
| Die Tragfähigkeit von durchgeschweißten
Stumpfnähten ist bei nicht hochfesten Blechen mit der Tragfähigkeit
des schwächeren der verbundenen Bauteile gleichzusetzen, während
die Tragfähigkeit von nicht durchgeschweißten Stumpfnähten
wie für Kehlnähte zu ermitteln ist (EC 3-1-8, 6.7.1). |
| Bei hochfesten Blechen sollte die Bedingung erfüllt sein |
|
|
|
| Bei einem Öffnungswinkel von φ = 0°
wird ein Stoß verschweißt. |
| Die maximale Schweißnahtdicke ist
auf die Dicke des dünnsten Anschluss-blechs beschränkt. |
|
 |
|
|
|
|
 |
| zur Hauptseite 4H-EC3GK,
Grundkomponenten |
 |
|
|